Woning Gillis van Ledenberchstraat 15-3 Amsterdam

Gillis van Ledenberchstraat 15--3, 1052TW Amsterdam

Ontvang updates voor Frederik Hendrikbuurt Noord

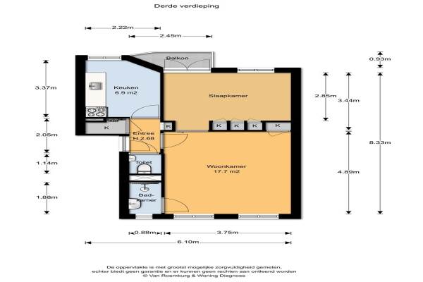
Het adres van deze woning uit 1916 is Gillis van Ledenberchstraat 15-3 te Amsterdam. Het pand heeft een oppervlakte van 46m² en heeft 2 kamers kamers waarvan 1 slaapkamers. De geschatte waarde van deze woning is € 230.000.

Bekijk alle woningen in Frederik Hendrikbuurt Noord

Gegevens van Bovenwoning

Bouwjaar
1916
Geschatte waarde
€ 230.000
Oppervlakte
46 m2
Inhoud
157 m3
Aantal kamers
2 kamers
Slaapkamers
1
Badkamers
1 badkamer en 1 apart toilet
Soort bouw
Bestaande bouw
Eigendomssituatie
Gemeentelijk eigendom belast met erfpacht (einddatum erfpacht: 30-06-2061)
Ligging
Aan rustige weg, in woonwijk en vrij uitzicht

Voorzieningen in de buurt

Boodschappen0,2 km
Grote supermarkt0,4 km
Cafetaria0,2 km
Restaurant0,2 km
Huisarts0,3 km
Ziekenhuis1,9 km
Kinderdagverblijf0,1 km
BSO0,3 km
Alle voorzieningen in Frederik Hendrikbuurt Noord

Binnenkijken bij Gillis van Ledenberchstraat 15-3 te Amsterdam

Meer meldingen in deze omgeving

Nieuw bedrijf
November 2025
Frederik Hendrikplantsoen 102H, 1052XZ Amsterdam

Nieuw bedrijf
November 2025
Rombout Hogerbeetsstraat 573, 1052VR Amsterdam

Nieuw bedrijf
November 2025
Frederik Hendrikplantsoen 102H, 1052XZ Amsterdam

Nieuw bedrijf
November 2025
Fagelstraat 68H, 1052GG Amsterdam

Nieuw bedrijf
November 2025
Rombout Hogerbeetsstraat 233, 1052VN Amsterdam

Nieuw bedrijf
November 2025
Lodewijk Tripstraat 6H, 1052ES Amsterdam

112 melding
Maandag 17-11-2025 om 14:30
Fagelstraat, Amsterdam

112 melding
Maandag 17-11-2025 om 14:15
Fagelstraat, Amsterdam

Direct een e-mail ontvangen bij nieuwe meldingen in deze regio?

Meld je dan GRATIS aan voor de Oozo Alert service voor Frederik Hendrikbuurt Noord

Instellen

Meer nieuws in Frederik Hendrikbuurt Noord

Weten hoe eenvoudig het is om af te vallen? Zonder pillen en smeersels en zonder je in het zweet te werken!
Kijk op eenvoudig-afvallen.nl

© 2012 - 2025 OOZO.nl - info@oozo.nl - Gegevens verwijderen? | Disclaimer | Privacy statement