Woning Fagelstraat 68 Amsterdam

Fagelstraat 68, 1052GG Amsterdam

Ontvang updates voor Frederik Hendrikbuurt Noord

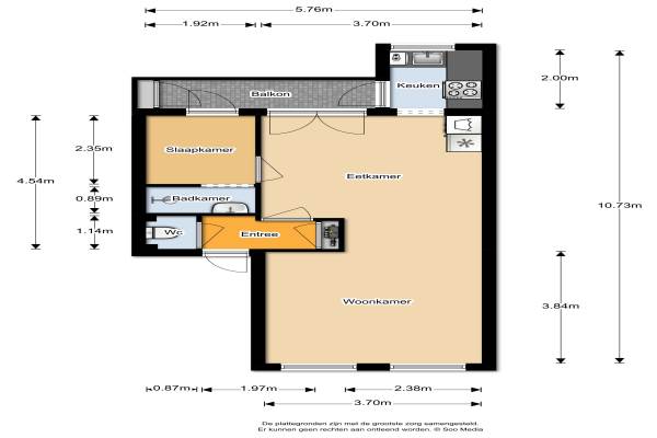
Het adres van deze woning uit 1904 is Fagelstraat 68 te Amsterdam. Het pand heeft een oppervlakte van 44m² en heeft 2 kamers kamers waarvan 1 slaapkamers. De geschatte waarde van deze woning is € 275.000.

Bekijk alle woningen in Frederik Hendrikbuurt Noord

Gegevens van Tussenverdieping (appartement)

Bouwjaar
1904
Geschatte waarde
€ 275.000
Oppervlakte
44 m2
Inhoud
150 m3
Aantal kamers
2 kamers
Slaapkamers
1
Badkamers
1 badkamer en 1 apart toilet
Soort bouw
Bestaande bouw
Eigendomssituatie
Gemeentelijk eigendom belast met erfpacht (einddatum erfpacht: 15-07-2028)
Ligging
Aan rustige weg en in woonwijk

Voorzieningen in de buurt

Boodschappen0,2 km
Grote supermarkt0,4 km
Cafetaria0,2 km
Restaurant0,2 km
Huisarts0,3 km
Ziekenhuis1,9 km
Kinderdagverblijf0,1 km
BSO0,3 km
Alle voorzieningen in Frederik Hendrikbuurt Noord

Binnenkijken bij Fagelstraat 68 te Amsterdam

Meer meldingen in deze omgeving

Nieuw bedrijf
Februari 2026
Gerard Schaepstraat 103, 1052GL Amsterdam

Nieuw bedrijf
Februari 2026
Zaagmolenstraat 6H, 1052HC Amsterdam

Nieuw bedrijf
Februari 2026
Nassaukade 512, 1052CN Amsterdam

Binnenkijken bij
Woensdag 18-2-2026
Fagelstraat 781, 1052GG Amsterdam

112 melding
Maandag 16-2-2026 om 02:01
Kostverlorenstraat, Amsterdam

Binnenkijken bij
Maandag 16-2-2026
Kostverlorenstraat 141, 1052GW Amsterdam

Binnenkijken bij
Zaterdag 14-2-2026
Van Oldenbarneveldtstraat 181, 1052KA Amsterdam

Binnenkijken bij
Zaterdag 14-2-2026
Amaliastraat 221, 1052GP Amsterdam

Direct een e-mail ontvangen bij nieuwe meldingen in deze regio?

Meld je dan GRATIS aan voor de Oozo Alert service voor Frederik Hendrikbuurt Noord

Instellen

Meer nieuws in Frederik Hendrikbuurt Noord

Weten hoe eenvoudig het is om af te vallen? Zonder pillen en smeersels en zonder je in het zweet te werken!
Kijk op eenvoudig-afvallen.nl

© 2012 - 2026 OOZO.nl - info@oozo.nl - Gegevens verwijderen? | Disclaimer | Privacy statement