Woning Vianenstraat 166 Amsterdam

Vianenstraat 166, 1106DE Amsterdam

Ontvang updates voor Gein Noordwest

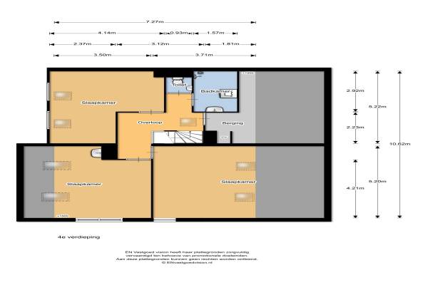
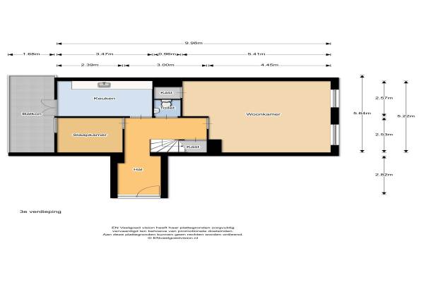
Het adres van deze woning uit 1983 is Vianenstraat 166 te Amsterdam. Het pand heeft een oppervlakte van 130m² en heeft 5 kamers kamers waarvan 4 slaapkamers. De geschatte waarde van deze woning is € 300.000.

Bekijk alle woningen in Gein Noordwest

Gegevens van Maisonnette (appartement)

Bouwjaar
1983
Geschatte waarde
€ 300.000
Oppervlakte
130 m2
Inhoud
338 m3
Aantal kamers
5 kamers
Slaapkamers
4
Badkamers
1 badkamer en 2 aparte toiletten
Soort bouw
Bestaande bouw
Eigendomssituatie
Gemeentelijk eigendom belast met erfpacht
Ligging
Aan rustige weg en in woonwijk

Voorzieningen in de buurt

Boodschappen0,5 km
Grote supermarkt0,5 km
Cafetaria0,5 km
Restaurant0,8 km
Huisarts0,5 km
Ziekenhuis2,9 km
Kinderdagverblijf0,4 km
BSO0,4 km
Alle voorzieningen in Gein Noordwest

Binnenkijken bij Vianenstraat 166 te Amsterdam

Meer meldingen in deze omgeving

112 melding
Vrijdag 23-1-2026 om 22:25
Voorthuizenstraat, Amsterdam

112 melding
Vrijdag 23-1-2026 om 15:59
Wisseloordplein, 1106MH Amsterdam

112 melding
Dinsdag 20-1-2026 om 16:10
Wisseloordplein, 1106MH Amsterdam

112 melding
Dinsdag 20-1-2026 om 14:21
Wisseloordplein, 1106MH Amsterdam

Binnenkijken bij
Vrijdag 16-1-2026
Wamelstraat 135, 1106DN Amsterdam

Binnenkijken bij
Donderdag 15-1-2026
Vleutenstraat 35, 1106CW Amsterdam

Binnenkijken bij
Dinsdag 13-1-2026
Wamelstraat 56, 1106DM Amsterdam

112 melding
Zondag 11-1-2026 om 16:15
Wisseloordplein, 1106MH Amsterdam

Direct een e-mail ontvangen bij nieuwe meldingen in deze regio?

Meld je dan GRATIS aan voor de Oozo Alert service voor Gein Noordwest

Instellen

Meer nieuws in Gein Noordwest

Weten hoe eenvoudig het is om af te vallen? Zonder pillen en smeersels en zonder je in het zweet te werken!
Kijk op eenvoudig-afvallen.nl

© 2012 - 2026 OOZO.nl - info@oozo.nl - Gegevens verwijderen? | Disclaimer | Privacy statement