Woning Willem de Zwijgerlaan 94 Amsterdam

Willem de Zwijgerlaan 94, 1056JT Amsterdam

Ontvang updates voor Geuzenhofbuurt

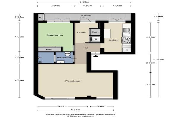
Het adres van deze woning uit 1935 is Willem de Zwijgerlaan 94 te Amsterdam. Het pand heeft een oppervlakte van 56m² en heeft 3 kamers kamers waarvan 2 slaapkamers. De geschatte waarde van deze woning is € 335.000.

Bekijk alle woningen in Geuzenhofbuurt

Gegevens van Bovenwoning (appartement)

Bouwjaar
1935
Geschatte waarde
€ 335.000
Oppervlakte
56 m2
Inhoud
193 m3
Aantal kamers
3 kamers
Slaapkamers
2
Badkamers
1 badkamer
Soort bouw
Bestaande bouw
Eigendomssituatie
Gemeentelijk eigendom belast met erfpacht (einddatum erfpacht: 31-08-2058)
Ligging
In woonwijk en vrij uitzicht

Voorzieningen in de buurt

Boodschappen0,3 km
Grote supermarkt0,4 km
Cafetaria0,3 km
Restaurant0,3 km
Huisarts0,6 km
Ziekenhuis2,3 km
Kinderdagverblijf0,3 km
BSO0,3 km
Alle voorzieningen in Geuzenhofbuurt

Binnenkijken bij Willem de Zwijgerlaan 94 te Amsterdam

Meer meldingen in deze omgeving

112 melding
Zondag 26-4-2026 om 08:37
Geuzenstraat, Amsterdam

112 melding
Woensdag 22-4-2026 om 20:15
Korte Geuzenstraat, Amsterdam

Binnenkijken bij
Donderdag 16-4-2026
Willem de Zwijgerlaan 361, 1056JS Amsterdam

112 melding
Dinsdag 14-4-2026 om 08:38
Korte Geuzenstraat, Amsterdam

Binnenkijken bij
Maandag 13-4-2026
Geuzenstraat 421, 1056KE Amsterdam

112 melding
Vrijdag 10-4-2026 om 15:51
Adriaan van Bergenstraat, 1056JW Amsterdam

Binnenkijken bij
Vrijdag 10-4-2026
Willem de Zwijgerlaan 22H, 1056JR Amsterdam

Nieuw bedrijf
April 2026
Geuzenkade 833, 1056KP Amsterdam

Direct een e-mail ontvangen bij nieuwe meldingen in deze regio?

Meld je dan GRATIS aan voor de Oozo Alert service voor Geuzenhofbuurt

Instellen

Meer nieuws in Geuzenhofbuurt

Weten hoe eenvoudig het is om af te vallen? Zonder pillen en smeersels en zonder je in het zweet te werken!
Kijk op eenvoudig-afvallen.nl

© 2012 - 2026 OOZO.nl - info@oozo.nl - Gegevens verwijderen? | Disclaimer | Privacy statement