Woning Jan van Duivenvoordestraat 23 Amsterdam

Jan van Duivenvoordestraat 23, 1067MT Amsterdam

Ontvang updates voor Buurt 8

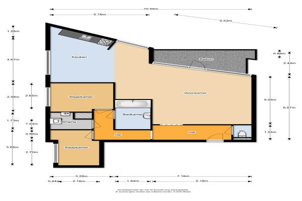
Het adres van deze woning uit 2002 is Jan van Duivenvoordestraat 23 te Amsterdam. Het pand heeft een oppervlakte van 91m² en heeft 3 kamers kamers waarvan 2 slaapkamers. De geschatte waarde van deze woning is € 275.000.

Bekijk alle woningen in Buurt 8

Gegevens van Bovenwoning (appartement)

Bouwjaar
2002
Geschatte waarde
€ 275.000
Oppervlakte
91 m2
Inhoud
285 m3
Aantal kamers
3 kamers
Slaapkamers
2
Badkamers
1 badkamer en 1 apart toilet
Soort bouw
Bestaande bouw
Eigendomssituatie
Gemeentelijk eigendom belast met erfpacht (einddatum erfpacht: 15-07-2050)
Ligging
In woonwijk en vrij uitzicht

Voorzieningen in de buurt

Boodschappen0,2 km
Grote supermarkt0,2 km
Cafetaria0,3 km
Restaurant0,4 km
Huisarts0,2 km
Ziekenhuis2,9 km
Kinderdagverblijf0,1 km
BSO0,2 km
Alle voorzieningen in Buurt 8

Binnenkijken bij Jan van Duivenvoordestraat 23 te Amsterdam

Meer meldingen in deze omgeving

Binnenkijken bij
Zaterdag 14-3-2026
Teldershof 43, 1067ML Amsterdam

112 melding
Donderdag 12-3-2026 om 12:21
Jan Bongastraat, 1067HZ Amsterdam

112 melding
Donderdag 12-3-2026 om 10:01
Jan Bongastraat, 1067HZ Amsterdam

112 melding
Maandag 9-3-2026 om 14:17
Bouwen Ewoutszstraat, Amsterdam

Binnenkijken bij
Maandag 9-3-2026
Jan van Duivenvoordestraat 131, 1067MT Amsterdam

112 melding
Zondag 8-3-2026 om 12:21
Dirk Sonoystraat, Amsterdam

112 melding
Donderdag 5-3-2026 om 14:14
Lambertus Zijlplein, Amsterdam

112 melding
Donderdag 5-3-2026 om 14:13
Lambertus Zijlplein, Amsterdam

Direct een e-mail ontvangen bij nieuwe meldingen in deze regio?

Meld je dan GRATIS aan voor de Oozo Alert service voor Buurt 8

Instellen

Meer nieuws in Buurt 8

Weten hoe eenvoudig het is om af te vallen? Zonder pillen en smeersels en zonder je in het zweet te werken!
Kijk op eenvoudig-afvallen.nl

© 2012 - 2026 OOZO.nl - info@oozo.nl - Gegevens verwijderen? | Disclaimer | Privacy statement