Woning Wolvenstraat 30 Amsterdam

Wolvenstraat 30, 1016EP Amsterdam

Ontvang updates voor Felix Meritisbuurt

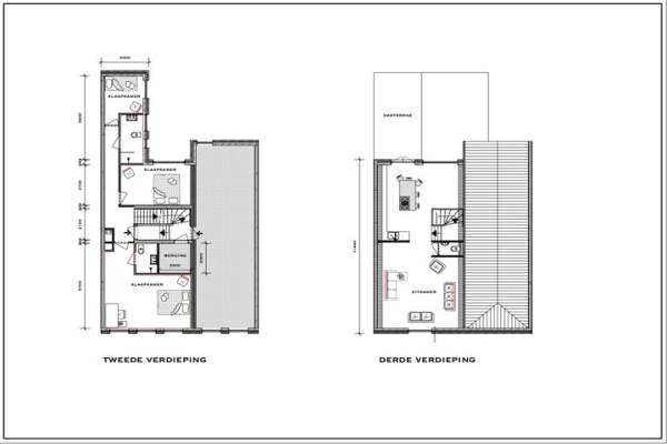
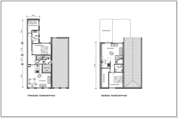
Het adres van deze woning uit 1980 is Wolvenstraat 30 te Amsterdam. Het pand heeft een oppervlakte van 109m² en heeft 5 kamers kamers waarvan 3 slaapkamers. De geschatte waarde van deze woning is € 850.000.

Bekijk alle woningen in Felix Meritisbuurt

Gegevens van Bovenwoning

Bouwjaar
1980
Geschatte waarde
€ 850.000
Oppervlakte
109 m2
Inhoud
478 m3
Aantal kamers
5 kamers
Slaapkamers
3
Soort bouw
Bestaande bouw
Eigendomssituatie
Volle eigendom
Ligging
In centrum en in woonwijk

Voorzieningen in de buurt

Boodschappen0,1 km
Grote supermarkt0,2 km
Cafetaria0,1 km
Restaurant0,1 km
Huisarts0,2 km
Ziekenhuis0,4 km
Kinderdagverblijf0,2 km
BSO0,5 km
Alle voorzieningen in Felix Meritisbuurt

Binnenkijken bij Wolvenstraat 30 te Amsterdam

Meer meldingen in deze omgeving

112 melding
Zaterdag 4-10-2025 om 15:05
Wolvenstraat, Amsterdam

Nieuw bedrijf
Oktober 2025
Berenstraat 4H, 1016GH Amsterdam

Binnenkijken bij
Donderdag 2-10-2025
Oude Spiegelstraat 6B, 1016BM Amsterdam

Binnenkijken bij
Donderdag 2-10-2025
Reestraat 111, 1016DM Amsterdam

Binnenkijken bij
Donderdag 2-10-2025
Singel 422K, 1016AK Amsterdam

Binnenkijken bij
Zondag 28-9-2025
Herengracht 327, 1016AW Amsterdam

Binnenkijken bij
Zaterdag 27-9-2025
Herengracht 2682V, 1016BW Amsterdam

Binnenkijken bij
Donderdag 25-9-2025
Herengracht 242A, 1016BT Amsterdam

Direct een e-mail ontvangen bij nieuwe meldingen in deze regio?

Meld je dan GRATIS aan voor de Oozo Alert service voor Felix Meritisbuurt

Instellen

Meer nieuws in Felix Meritisbuurt

Weten hoe eenvoudig het is om af te vallen? Zonder pillen en smeersels en zonder je in het zweet te werken!
Kijk op eenvoudig-afvallen.nl

© 2012 - 2025 OOZO.nl - info@oozo.nl - Gegevens verwijderen? | Disclaimer | Privacy statement