Woning Keizersgracht 249 Amsterdam

Keizersgracht 249, 1016EB Amsterdam

Ontvang updates voor Felix Meritisbuurt

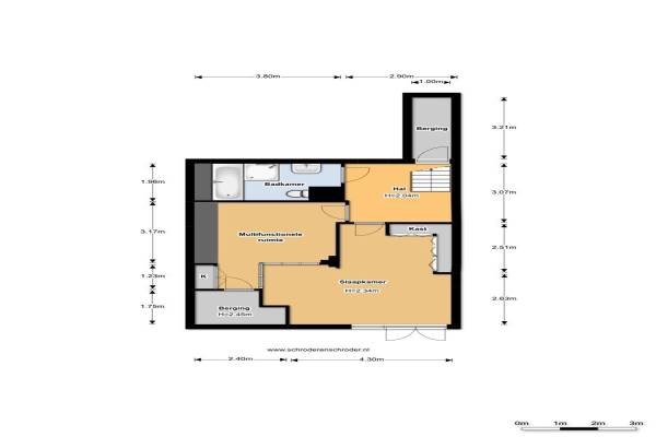
Het adres van deze woning uit 1615 is Keizersgracht 249 te Amsterdam. Het pand heeft een oppervlakte van 163m² en heeft 5 kamers kamers waarvan 3 slaapkamers. De geschatte waarde van deze woning is € 995.000.

Bekijk alle woningen in Felix Meritisbuurt

Gegevens van Dubbel benedenhuis (bel-etage)

Bouwjaar
1615
Geschatte waarde
€ 995.000
Oppervlakte
163 m2
Inhoud
426 m3
Aantal kamers
5 kamers
Slaapkamers
3
Badkamers
1 badkamer en 1 apart toilet
Soort bouw
Bestaande bouw
Eigendomssituatie
Volle eigendom
Ligging
Aan vaarwater, aan water en in centrum
Tuin
Achtertuin
Achtertuin
175 m² (25m diep en 7m breed)

Voorzieningen in de buurt

Boodschappen0,1 km
Grote supermarkt0,2 km
Cafetaria0,1 km
Restaurant0,1 km
Huisarts0,2 km
Ziekenhuis0,4 km
Kinderdagverblijf0,2 km
BSO0,5 km
Alle voorzieningen in Felix Meritisbuurt

Binnenkijken bij Keizersgracht 249 te Amsterdam

Meer meldingen in deze omgeving

112 melding
Zaterdag 4-10-2025 om 15:05
Wolvenstraat, Amsterdam

Nieuw bedrijf
Oktober 2025
Berenstraat 4H, 1016GH Amsterdam

Binnenkijken bij
Donderdag 2-10-2025
Oude Spiegelstraat 6B, 1016BM Amsterdam

Binnenkijken bij
Donderdag 2-10-2025
Reestraat 111, 1016DM Amsterdam

Binnenkijken bij
Donderdag 2-10-2025
Singel 422K, 1016AK Amsterdam

Binnenkijken bij
Zondag 28-9-2025
Herengracht 327, 1016AW Amsterdam

Binnenkijken bij
Zaterdag 27-9-2025
Herengracht 2682V, 1016BW Amsterdam

Binnenkijken bij
Donderdag 25-9-2025
Herengracht 242A, 1016BT Amsterdam

Direct een e-mail ontvangen bij nieuwe meldingen in deze regio?

Meld je dan GRATIS aan voor de Oozo Alert service voor Felix Meritisbuurt

Instellen

Meer nieuws in Felix Meritisbuurt

Weten hoe eenvoudig het is om af te vallen? Zonder pillen en smeersels en zonder je in het zweet te werken!
Kijk op eenvoudig-afvallen.nl

© 2012 - 2025 OOZO.nl - info@oozo.nl - Gegevens verwijderen? | Disclaimer | Privacy statement