Woning Herengracht 365 Amsterdam

Herengracht 365, 1016BB Amsterdam

Ontvang updates voor Felix Meritisbuurt

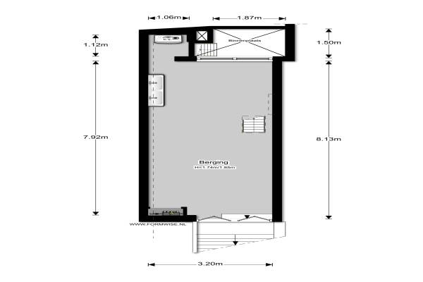
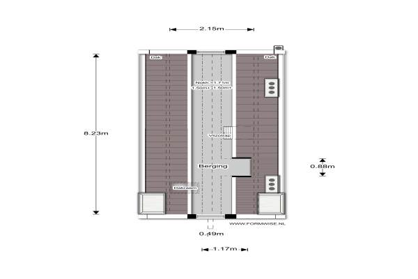
Het adres van deze woning is Herengracht 365 te Amsterdam. Het pand heeft een oppervlakte van 107m² en een perceeloppervlakte van 39m² en heeft 7 kamers kamers waarvan 4 slaapkamers. De geschatte waarde van deze woning is € 795.000.

Bekijk alle woningen in Felix Meritisbuurt

Gegevens van Grachtenpand, tussenwoning

Bouwjaar
Voor 1906
Geschatte waarde
€ 795.000
Oppervlakte
107 m2
Inhoud
321 m3
Aantal kamers
7 kamers
Slaapkamers
4
Badkamers
2 badkamers en 1 apart toilet
Soort bouw
Bestaande bouw
Eigendomssituatie
Volle eigendom
Ligging
Aan water, aan rustige weg, in centrum, vrij uitzicht en aan vaarwater
Tuin
Patio/atrium

Voorzieningen in de buurt

Boodschappen0,1 km
Grote supermarkt0,2 km
Cafetaria0,1 km
Restaurant0,1 km
Huisarts0,2 km
Ziekenhuis0,4 km
Kinderdagverblijf0,2 km
BSO0,5 km
Alle voorzieningen in Felix Meritisbuurt

Binnenkijken bij Herengracht 365 te Amsterdam

Meer meldingen in deze omgeving

Binnenkijken bij
Woensdag 8-4-2026
Herengracht 304, 1016CD Amsterdam

Faillissement
Dinsdag 7-4-2026
Herengracht 280, 1016BX Amsterdam

Faillissement
Dinsdag 7-4-2026
Herengracht 280, 1016BX Amsterdam

Faillissement
Dinsdag 7-4-2026
Herengracht 280, 1016BX Amsterdam

Binnenkijken bij
Maandag 6-4-2026
Keizersgracht 3452, 1016EH Amsterdam

Binnenkijken bij
Donderdag 2-4-2026
Herengracht 200D, 1016BS Amsterdam

Faillissement
Woensdag 1-4-2026
Herengracht 284, 1016BX Amsterdam

Binnenkijken bij
Woensdag 1-4-2026
Herengracht 3231, 1016AW Amsterdam

Direct een e-mail ontvangen bij nieuwe meldingen in deze regio?

Meld je dan GRATIS aan voor de Oozo Alert service voor Felix Meritisbuurt

Instellen

Meer nieuws in Felix Meritisbuurt

Weten hoe eenvoudig het is om af te vallen? Zonder pillen en smeersels en zonder je in het zweet te werken!
Kijk op eenvoudig-afvallen.nl

© 2012 - 2026 OOZO.nl - info@oozo.nl - Gegevens verwijderen? | Disclaimer | Privacy statement