Woning Singel 312 Amsterdam

Singel 312, 1016AE Amsterdam

Ontvang updates voor Felix Meritisbuurt

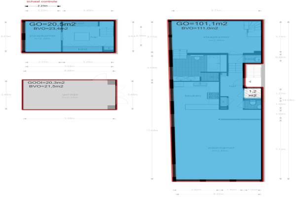
Het adres van deze woning is Singel 312 te Amsterdam. Het pand heeft een oppervlakte van 142m² en heeft 4 kamers kamers waarvan 2 slaapkamers. De geschatte waarde van deze woning is € 1.150.000.

Bekijk alle woningen in Felix Meritisbuurt

Gegevens van Bovenwoning (appartement)

Bouwjaar
Voor 1906
Geschatte waarde
€ 1.150.000
Oppervlakte
142 m2
Inhoud
458 m3
Aantal kamers
4 kamers
Slaapkamers
2
Badkamers
1 badkamer en 1 apart toilet
Soort bouw
Bestaande bouw
Eigendomssituatie
Volle eigendom
Ligging
Aan water, in centrum, vrij uitzicht en aan vaarwater

Voorzieningen in de buurt

Boodschappen0,1 km
Grote supermarkt0,2 km
Cafetaria0,1 km
Restaurant0,1 km
Huisarts0,2 km
Ziekenhuis0,4 km
Kinderdagverblijf0,2 km
BSO0,5 km
Alle voorzieningen in Felix Meritisbuurt

Binnenkijken bij Singel 312 te Amsterdam

Meer meldingen in deze omgeving

Binnenkijken bij
Woensdag 21-1-2026
Keizersgracht 3452, 1016EH Amsterdam

Binnenkijken bij
Woensdag 21-1-2026
Prinsengracht 4052A, 1016HM Amsterdam

Binnenkijken bij
Woensdag 21-1-2026
Keizersgracht 245A, 1016EB Amsterdam

Nieuw bedrijf
Januari 2026
Westermarkt 19B, 1016DJ Amsterdam

Nieuw bedrijf
Januari 2026
Keizersgracht 241, 1016EA Amsterdam

Nieuw bedrijf
Januari 2026
Herengracht 320, 1016CE Amsterdam

Nieuw bedrijf
Januari 2026
Keizersgracht 241, 1016EA Amsterdam

Nieuw bedrijf
Januari 2026
Herengracht 320, 1016CE Amsterdam

Direct een e-mail ontvangen bij nieuwe meldingen in deze regio?

Meld je dan GRATIS aan voor de Oozo Alert service voor Felix Meritisbuurt

Instellen

Meer nieuws in Felix Meritisbuurt

Weten hoe eenvoudig het is om af te vallen? Zonder pillen en smeersels en zonder je in het zweet te werken!
Kijk op eenvoudig-afvallen.nl

© 2012 - 2026 OOZO.nl - info@oozo.nl - Gegevens verwijderen? | Disclaimer | Privacy statement