Woning Keizersgracht 259 Amsterdam

Keizersgracht 259, 1016EC Amsterdam

Ontvang updates voor Felix Meritisbuurt

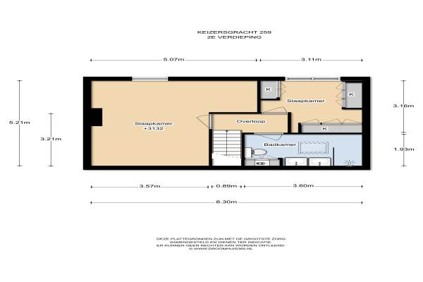
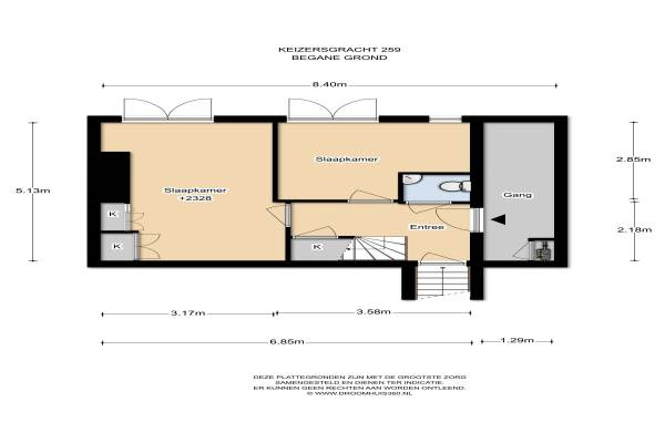
Het adres van deze woning uit 1625 is Keizersgracht 259 te Amsterdam. Het pand heeft een oppervlakte van 181m² en heeft 7 kamers kamers waarvan 5 slaapkamers. De geschatte waarde van deze woning is € 1.385.000.

Bekijk alle woningen in Felix Meritisbuurt

Gegevens van Beneden + bovenwoning (appartement)

Bouwjaar
1625
Geschatte waarde
€ 1.385.000
Oppervlakte
181 m2
Inhoud
641 m3
Aantal kamers
7 kamers
Slaapkamers
5
Badkamers
1 badkamer en 1 apart toilet
Soort bouw
Bestaande bouw
Eigendomssituatie
Volle eigendom
Ligging
In centrum en beschutte ligging
Tuin
Achtertuin
Achtertuin
28 m² (4,25m diep en 6,5m breed)

Voorzieningen in de buurt

Boodschappen0,1 km
Grote supermarkt0,2 km
Cafetaria0,1 km
Restaurant0,1 km
Huisarts0,2 km
Ziekenhuis0,4 km
Kinderdagverblijf0,2 km
BSO0,5 km
Alle voorzieningen in Felix Meritisbuurt

Binnenkijken bij Keizersgracht 259 te Amsterdam

Meer meldingen in deze omgeving

Binnenkijken bij
Vrijdag 13-2-2026
Prinsengracht 299B, 1016GX Amsterdam

Faillissement
Donderdag 12-2-2026
Herengracht 294, 1016BX Amsterdam

Faillissement
Maandag 9-2-2026
Keizersgracht 277, 1016ED Amsterdam

Nieuw bedrijf
Februari 2026
Keizersgracht 349, 1016EH Amsterdam

Binnenkijken bij
Maandag 9-2-2026
Keizersgracht 3452, 1016EH Amsterdam

Binnenkijken bij
Zaterdag 7-2-2026
Prinsengracht 349E, 1016HK Amsterdam

112 melding
Vrijdag 6-2-2026 om 15:32
Berenstraat, Amsterdam

Onroerend goed
Donderdag 5-2-2026
Herengracht 265-H, 1016BJ Amsterdam

Direct een e-mail ontvangen bij nieuwe meldingen in deze regio?

Meld je dan GRATIS aan voor de Oozo Alert service voor Felix Meritisbuurt

Instellen

Meer nieuws in Felix Meritisbuurt

Weten hoe eenvoudig het is om af te vallen? Zonder pillen en smeersels en zonder je in het zweet te werken!
Kijk op eenvoudig-afvallen.nl

© 2012 - 2026 OOZO.nl - info@oozo.nl - Gegevens verwijderen? | Disclaimer | Privacy statement