Woning Langestraat 43 Amsterdam

Langestraat 43, 1015AK Amsterdam

Ontvang updates voor Langestraat e.o.

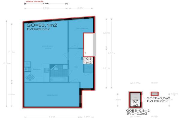
Het adres van deze woning is Langestraat 43 te Amsterdam. Het pand heeft een oppervlakte van 63m² en heeft 3 kamers kamers waarvan 2 slaapkamers. De geschatte waarde van deze woning is € 399.000.

Bekijk alle woningen in Langestraat e.o.

Gegevens van Bovenwoning (appartement)

Bouwjaar
Voor 1906
Geschatte waarde
€ 399.000
Oppervlakte
63 m2
Inhoud
186 m3
Aantal kamers
3 kamers
Slaapkamers
2
Badkamers
1 badkamer
Soort bouw
Bestaande bouw
Eigendomssituatie
Volle eigendom
Ligging
Aan rustige weg en in centrum

Voorzieningen in de buurt

Boodschappen0,2 km
Grote supermarkt0,4 km
Cafetaria0,2 km
Restaurant0,1 km
Huisarts0,2 km
Ziekenhuis1,0 km
Kinderdagverblijf0,3 km
BSO0,5 km
Alle voorzieningen in Langestraat e.o.

Binnenkijken bij Langestraat 43 te Amsterdam

Meer meldingen in deze omgeving

Nieuw bedrijf
Oktober 2025
Prinsenstraat 302, 1015DD Amsterdam

Binnenkijken bij
Woensdag 1-10-2025
Brouwersgracht 55D, 1015GB Amsterdam

Binnenkijken bij
Zondag 28-9-2025
Langestraat 261, 1015AL Amsterdam

112 melding
Zaterdag 27-9-2025 om 01:03
Langestraat, Amsterdam

Onroerend goed
Donderdag 25-9-2025
Herenstraat 32, 1015CB Amsterdam

112 melding
Woensdag 24-9-2025 om 04:38
Herengracht, 1015BR Amsterdam

Binnenkijken bij
Woensdag 24-9-2025
Herengracht 6, 1015BK Amsterdam

Binnenkijken bij
Maandag 22-9-2025
Brouwersgracht 65C, 1015GC Amsterdam

Direct een e-mail ontvangen bij nieuwe meldingen in deze regio?

Meld je dan GRATIS aan voor de Oozo Alert service voor Langestraat e.o.

Instellen

Meer nieuws in Langestraat e.o.

Weten hoe eenvoudig het is om af te vallen? Zonder pillen en smeersels en zonder je in het zweet te werken!
Kijk op eenvoudig-afvallen.nl

© 2012 - 2025 OOZO.nl - info@oozo.nl - Gegevens verwijderen? | Disclaimer | Privacy statement