Woning Keizersgracht 130 Amsterdam

Keizersgracht 130, 1015CW Amsterdam

Ontvang updates voor Leliegracht e.o.

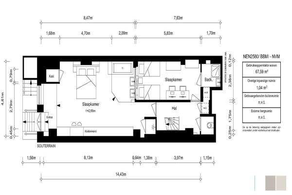
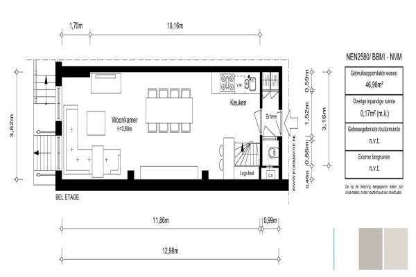
Het adres van deze woning uit 1755 is Keizersgracht 130 te Amsterdam. Het pand heeft een oppervlakte van 115m² en heeft 3 kamers kamers waarvan 2 slaapkamers. De geschatte waarde van deze woning is € 940.000.

Bekijk alle woningen in Leliegracht e.o.

Gegevens van Benedenwoning

Bouwjaar
1755
Geschatte waarde
€ 940.000
Oppervlakte
115 m2
Inhoud
354 m3
Aantal kamers
3 kamers
Slaapkamers
2
Badkamers
2 badkamers en 2 aparte toiletten
Soort bouw
Bestaande bouw
Eigendomssituatie
Volle eigendom
Ligging
In centrum

Voorzieningen in de buurt

Boodschappen0,1 km
Grote supermarkt0,4 km
Cafetaria0,1 km
Restaurant0,1 km
Huisarts0,2 km
Ziekenhuis0,8 km
Kinderdagverblijf0,4 km
BSO0,6 km
Alle voorzieningen in Leliegracht e.o.

Binnenkijken bij Keizersgracht 130 te Amsterdam

Meer meldingen in deze omgeving

Nieuw bedrijf
Januari 2026
Herengracht 124, 1015BT Amsterdam

Nieuw bedrijf
Januari 2026
Keizersgracht 127, 1015CJ Amsterdam

Nieuw bedrijf
Januari 2026
Keizersgracht 127, 1015CJ Amsterdam

Nieuw bedrijf
Januari 2026
Prinsengracht 205B, 1015DT Amsterdam

Binnenkijken bij
Woensdag 21-1-2026
Keizersgracht 96B, 1015CV Amsterdam

Nieuw bedrijf
Januari 2026
Herengracht 136A, 1015BV Amsterdam

Nieuw bedrijf
Januari 2026
Keizersgracht 111D, 1015CJ Amsterdam

Nieuw bedrijf
Januari 2026
Herengracht 102A, 1015BS Amsterdam

Direct een e-mail ontvangen bij nieuwe meldingen in deze regio?

Meld je dan GRATIS aan voor de Oozo Alert service voor Leliegracht e.o.

Instellen

Meer nieuws in Leliegracht e.o.

Weten hoe eenvoudig het is om af te vallen? Zonder pillen en smeersels en zonder je in het zweet te werken!
Kijk op eenvoudig-afvallen.nl

© 2012 - 2026 OOZO.nl - info@oozo.nl - Gegevens verwijderen? | Disclaimer | Privacy statement