Woning Keizersgracht 812 Amsterdam

Keizersgracht 812, 1017ED Amsterdam

Ontvang updates voor Amstelveldbuurt

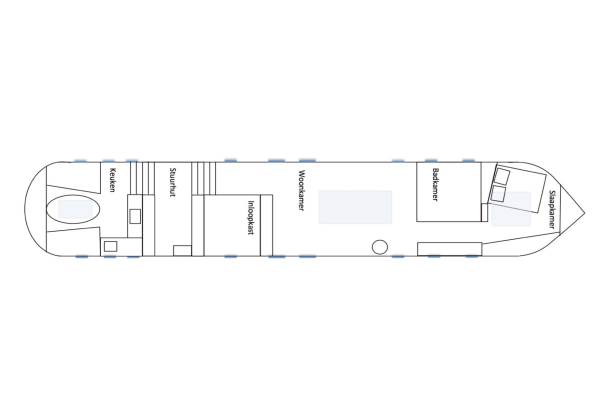
Het adres van deze woning uit 1914 is Keizersgracht 812 te Amsterdam. Het pand heeft een oppervlakte van 75m² en heeft 4 kamers kamers waarvan 1 slaapkamers. De geschatte waarde van deze woning is € 559.000.

Bekijk alle woningen in Amstelveldbuurt

Gegevens van Woonboot, vrijstaande woning

Bouwjaar
1914
Geschatte waarde
€ 559.000
Oppervlakte
75 m2
Inhoud
187 m3
Aantal kamers
4 kamers
Slaapkamers
1
Soort bouw
Bestaande bouw

Voorzieningen in de buurt

Boodschappen0,1 km
Grote supermarkt0,3 km
Cafetaria0,1 km
Restaurant0,1 km
Huisarts0,3 km
Ziekenhuis1,4 km
Kinderdagverblijf0,2 km
BSO0,5 km
Alle voorzieningen in Amstelveldbuurt

Binnenkijken bij Keizersgracht 812 te Amsterdam

Meer meldingen in deze omgeving

Nieuw bedrijf
Januari 2026
Utrechtsestraat 42D, 1017VP Amsterdam

Nieuw bedrijf
Januari 2026
Herengracht 5963, 1017CJ Amsterdam

Binnenkijken bij
Woensdag 21-1-2026
Keizersgracht 719E, 1017DX Amsterdam

Nieuw bedrijf
Januari 2026
Keizersgracht 728A, 1017EW Amsterdam

Nieuw bedrijf
Januari 2026
Kerkstraat 4103, 1017JC Amsterdam

Binnenkijken bij
Donderdag 15-1-2026
Keizersgracht 812E, 1017ED Amsterdam

Binnenkijken bij
Dinsdag 13-1-2026
Utrechtsestraat 125A, 1017VL Amsterdam

Binnenkijken bij
Vrijdag 9-1-2026
Utrechtsestraat 96B, 1017VS Amsterdam

Direct een e-mail ontvangen bij nieuwe meldingen in deze regio?

Meld je dan GRATIS aan voor de Oozo Alert service voor Amstelveldbuurt

Instellen

Meer nieuws in Amstelveldbuurt

Weten hoe eenvoudig het is om af te vallen? Zonder pillen en smeersels en zonder je in het zweet te werken!
Kijk op eenvoudig-afvallen.nl

© 2012 - 2026 OOZO.nl - info@oozo.nl - Gegevens verwijderen? | Disclaimer | Privacy statement