Woning Kerkstraat 254 Amsterdam

Kerkstraat 254, 1017HA Amsterdam

Ontvang updates voor Van Loonbuurt

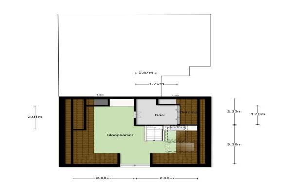
Het adres van deze woning is Kerkstraat 254 te Amsterdam. Het pand heeft een oppervlakte van 91m² en heeft 3 kamers kamers waarvan 1 slaapkamers. De geschatte waarde van deze woning is € 550.000.

Bekijk alle woningen in Van Loonbuurt

Gegevens van Bovenwoning

Bouwjaar
Voor 1906
Geschatte waarde
€ 550.000
Oppervlakte
91 m2
Inhoud
360 m3
Aantal kamers
3 kamers
Slaapkamers
1
Soort bouw
Bestaande bouw
Eigendomssituatie
Volle eigendom

Voorzieningen in de buurt

Boodschappen0,1 km
Grote supermarkt0,2 km
Cafetaria0,1 km
Restaurant0,1 km
Huisarts0,3 km
Ziekenhuis1,2 km
Kinderdagverblijf0,3 km
BSO0,3 km
Alle voorzieningen in Van Loonbuurt

Binnenkijken bij Kerkstraat 254 te Amsterdam

Meer meldingen in deze omgeving

112 melding
Maandag 23-2-2026 om 09:36
Prinsengracht, 1017KN Amsterdam

112 melding
Vrijdag 20-2-2026 om 09:55
Prinsengracht, 1017KN Amsterdam

Nieuw bedrijf
Februari 2026
Vijzelstraat 68, 1017HL Amsterdam

112 melding
Woensdag 18-2-2026 om 17:42
Prinsengracht, 1017KN Amsterdam

112 melding
Maandag 16-2-2026 om 14:13
Prinsengracht, 1017KN Amsterdam

112 melding
Maandag 16-2-2026 om 12:42
Prinsengracht, 1017KN Amsterdam

Binnenkijken bij
Maandag 16-2-2026
Kerkstraat 322E, 1017HC Amsterdam

Binnenkijken bij
Maandag 16-2-2026
Reguliersdwarsstraat 106B, 1017BN Amsterdam

Direct een e-mail ontvangen bij nieuwe meldingen in deze regio?

Meld je dan GRATIS aan voor de Oozo Alert service voor Van Loonbuurt

Instellen

Meer nieuws in Van Loonbuurt

Weten hoe eenvoudig het is om af te vallen? Zonder pillen en smeersels en zonder je in het zweet te werken!
Kijk op eenvoudig-afvallen.nl

© 2012 - 2026 OOZO.nl - info@oozo.nl - Gegevens verwijderen? | Disclaimer | Privacy statement