Woning Reguliersgracht 36 Amsterdam

Reguliersgracht 36, 1017LS Amsterdam

Ontvang updates voor Van Loonbuurt

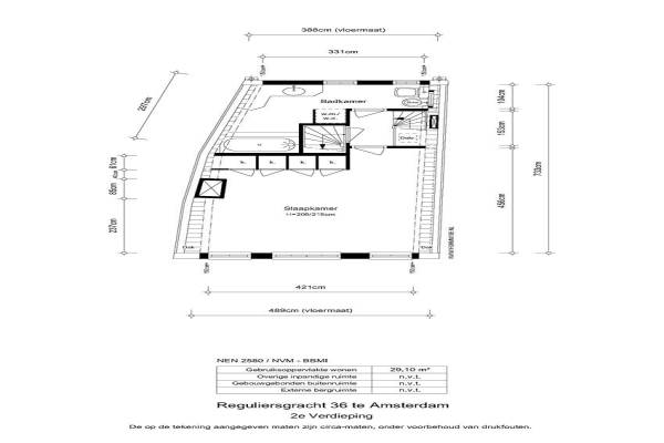
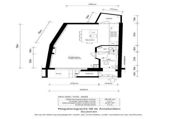
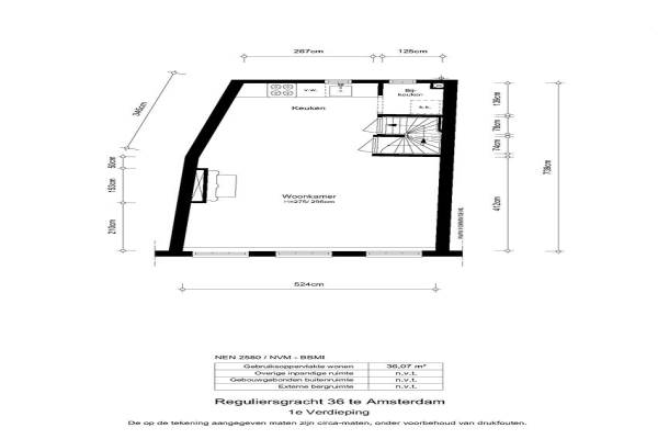
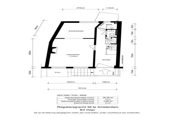
Het adres van deze woning uit 1905 is Reguliersgracht 36 te Amsterdam. Het pand heeft een oppervlakte van 150m² en een perceeloppervlakte van 43m² en heeft 5 kamers kamers waarvan 2 slaapkamers. De geschatte waarde van deze woning is € 1.700.000.

Bekijk alle woningen in Van Loonbuurt

Gegevens van Grachtenpand, tussenwoning

Bouwjaar
1905
Geschatte waarde
€ 1.700.000
Oppervlakte
150 m2
Inhoud
425 m3
Aantal kamers
5 kamers
Slaapkamers
2
Badkamers
2 badkamers en 2 aparte toiletten
Soort bouw
Bestaande bouw
Eigendomssituatie
Volle eigendom
Ligging
Aan vaarwater, aan water en in centrum

Voorzieningen in de buurt

Boodschappen0,1 km
Grote supermarkt0,2 km
Cafetaria0,1 km
Restaurant0,1 km
Huisarts0,3 km
Ziekenhuis1,2 km
Kinderdagverblijf0,3 km
BSO0,3 km
Alle voorzieningen in Van Loonbuurt

Binnenkijken bij Reguliersgracht 36 te Amsterdam

Meer meldingen in deze omgeving

112 melding
Zaterdag 14-3-2026 om 23:55
Prinsengracht, 1017KN Amsterdam

112 melding
Zaterdag 14-3-2026 om 23:54
Prinsengracht, 1017KN Amsterdam

112 melding
Zaterdag 14-3-2026 om 23:53
Prinsengracht, 1017KN Amsterdam

112 melding
Zaterdag 14-3-2026 om 23:53
Prinsengracht, 1017KN Amsterdam

112 melding
Zaterdag 14-3-2026 om 17:55
Prinsengracht, 1017KN Amsterdam

112 melding
Zaterdag 14-3-2026 om 13:07
Prinsengracht, 1017KN Amsterdam

Binnenkijken bij
Zaterdag 14-3-2026
Keizersgracht 643E, 1017DT Amsterdam

Nieuw bedrijf
Maart 2026
Prinsengracht 1031C, 1017KP Amsterdam

Direct een e-mail ontvangen bij nieuwe meldingen in deze regio?

Meld je dan GRATIS aan voor de Oozo Alert service voor Van Loonbuurt

Instellen

Meer nieuws in Van Loonbuurt

Weten hoe eenvoudig het is om af te vallen? Zonder pillen en smeersels en zonder je in het zweet te werken!
Kijk op eenvoudig-afvallen.nl

© 2012 - 2026 OOZO.nl - info@oozo.nl - Gegevens verwijderen? | Disclaimer | Privacy statement