Woning Realengracht 160 Amsterdam

Realengracht 160, 1013KW Amsterdam

Ontvang updates voor Westelijke eilanden

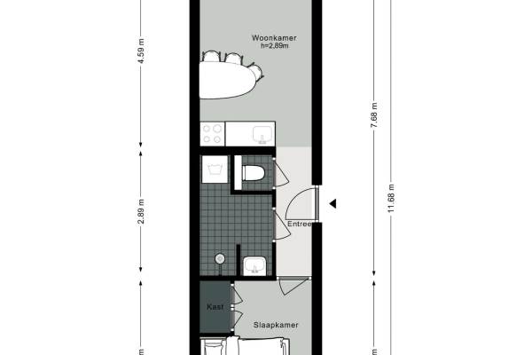
Het adres van deze woning uit 1981 is Realengracht 160 te Amsterdam. Het pand heeft een oppervlakte van 32m² en heeft 2 kamers kamers waarvan 1 slaapkamers. De geschatte waarde van deze woning is € 350.000.

Bekijk alle woningen in Westelijke eilanden

Gegevens van Benedenwoning (appartement)

Bouwjaar
1981
Geschatte waarde
€ 350.000
Oppervlakte
32 m2
Inhoud
129 m3
Aantal kamers
2 kamers
Slaapkamers
1
Badkamers
1 badkamer en 1 apart toilet
Soort bouw
Bestaande bouw
Eigendomssituatie
Volle eigendom
Ligging
Aan rustige weg, aan vaarwater, aan water, in centrum, in woonwijk, open ligging en vrij uitzicht
Tuin
Achtertuin

Voorzieningen in de buurt

Boodschappen0,4 km
Grote supermarkt0,5 km
Cafetaria0,4 km
Restaurant0,1 km
Huisarts0,5 km
Ziekenhuis2,2 km
Kinderdagverblijf0,3 km
BSO0,4 km
Alle voorzieningen in Westelijke eilanden

Binnenkijken bij Realengracht 160 te Amsterdam

Meer meldingen in deze omgeving

Binnenkijken bij
Dinsdag 18-11-2025
Vierwindenstraat 119, 1013LA Amsterdam

Nieuw bedrijf
November 2025
Tweede Breeuwersstraat 12, 1013MB Amsterdam

Nieuw bedrijf
November 2025
Vierwindenstraat 279, 1013CW Amsterdam

Faillissement
Maandag 17-11-2025
Prinseneiland 20G, 1013LR Amsterdam

112 melding
Maandag 17-11-2025 om 14:26
Galgenstraat, 1013LT Amsterdam

112 melding
Zaterdag 15-11-2025 om 15:30
Grote Bickersstraat, Amsterdam

112 melding
Zaterdag 15-11-2025 om 15:16
Grote Bickersstraat, Amsterdam

Binnenkijken bij
Vrijdag 14-11-2025
Prinseneiland 372, 1013LL Amsterdam

Direct een e-mail ontvangen bij nieuwe meldingen in deze regio?

Meld je dan GRATIS aan voor de Oozo Alert service voor Westelijke eilanden

Instellen

Meer nieuws in Westelijke eilanden

Weten hoe eenvoudig het is om af te vallen? Zonder pillen en smeersels en zonder je in het zweet te werken!
Kijk op eenvoudig-afvallen.nl

© 2012 - 2025 OOZO.nl - info@oozo.nl - Gegevens verwijderen? | Disclaimer | Privacy statement