Woning Jeltje de Bosch Kemperpad 95 Amsterdam

Jeltje de Bosch Kemperpad 95, 1054PJ Amsterdam

Ontvang updates voor WG-terrein

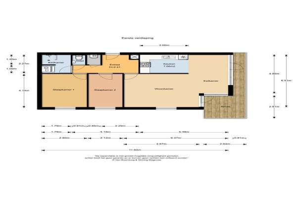
Het adres van deze woning uit 1987 is Jeltje de Bosch Kemperpad 95 te Amsterdam. Het pand heeft een oppervlakte van 73m² en heeft 3 kamers kamers waarvan 2 slaapkamers. De geschatte waarde van deze woning is € 480.000.

Bekijk alle woningen in WG-terrein

Gegevens van Bovenwoning (appartement)

Bouwjaar
1987
Geschatte waarde
€ 480.000
Oppervlakte
73 m2
Inhoud
175 m3
Aantal kamers
3 kamers
Slaapkamers
2
Badkamers
1 badkamer en 1 apart toilet
Soort bouw
Bestaande bouw
Eigendomssituatie
Gemeentelijke erfpacht
Ligging
Aan rustige weg en in woonwijk

Voorzieningen in de buurt

Boodschappen0,2 km
Grote supermarkt0,3 km
Cafetaria0,2 km
Restaurant0,1 km
Huisarts0,2 km
Ziekenhuis2,0 km
Kinderdagverblijf0,2 km
BSO0,5 km
Alle voorzieningen in WG-terrein

Binnenkijken bij Jeltje de Bosch Kemperpad 95 te Amsterdam

Meer meldingen in deze omgeving

112 melding
Woensdag 17-12-2025 om 11:45
Ketelhuisplein, 1054RD Amsterdam

Nieuw bedrijf
December 2025
Eerste Constantijn Huygensstraat 332, 1054BR Amsterdam

Nieuw bedrijf
December 2025
Eerste Helmersstraat 195H, 1054DV Amsterdam

Nieuw bedrijf
December 2025
Tweede Helmersstraat 112D, 1054CN Amsterdam

Nieuw bedrijf
December 2025
Overtoom 268H, 1054JB Amsterdam

Nieuw bedrijf
December 2025
Tweede Constantijn Huygensstraat 3912, 1054CP Amsterdam

112 melding
Maandag 15-12-2025 om 14:56
Anna Spenglerstraat, Amsterdam

112 melding
Vrijdag 12-12-2025 om 22:46
Ketelhuisplein, 1054RD Amsterdam

Direct een e-mail ontvangen bij nieuwe meldingen in deze regio?

Meld je dan GRATIS aan voor de Oozo Alert service voor WG-terrein

Instellen

Meer nieuws in WG-terrein

Weten hoe eenvoudig het is om af te vallen? Zonder pillen en smeersels en zonder je in het zweet te werken!
Kijk op eenvoudig-afvallen.nl

© 2012 - 2025 OOZO.nl - info@oozo.nl - Gegevens verwijderen? | Disclaimer | Privacy statement