Woning Pannerdenstraat 37 Amsterdam

Pannerdenstraat 37, 1106BE Amsterdam

Ontvang updates voor Gaasperdam Noord

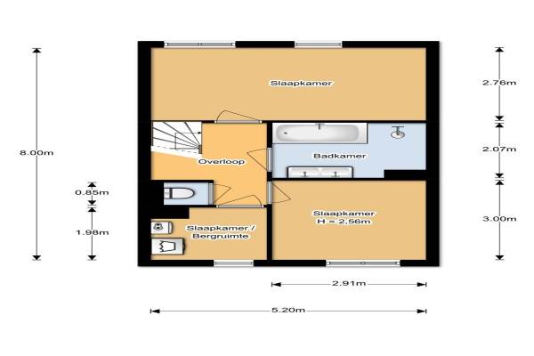
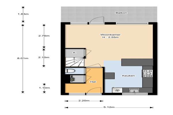
Het adres van deze woning uit 1983 is Pannerdenstraat 37 te Amsterdam. Het pand heeft een oppervlakte van 83m² en heeft 4 kamers kamers waarvan 3 slaapkamers. De geschatte waarde van deze woning is € 225.000.

Bekijk alle woningen in Gaasperdam Noord

Gegevens van Maisonnette (appartement)

Bouwjaar
1983
Geschatte waarde
€ 225.000
Oppervlakte
83 m2
Inhoud
232 m3
Aantal kamers
4 kamers
Slaapkamers
3
Badkamers
1 badkamer en 2 aparte toiletten
Soort bouw
Bestaande bouw
Eigendomssituatie
Gemeentelijke erfpacht
Ligging
Aan water, in woonwijk en vrij uitzicht

Voorzieningen in de buurt

Boodschappen0,4 km
Grote supermarkt0,4 km
Cafetaria0,5 km
Restaurant0,5 km
Huisarts0,9 km
Ziekenhuis2,2 km
Kinderdagverblijf0,5 km
BSO0,5 km
Alle voorzieningen in Gaasperdam Noord

Binnenkijken bij Pannerdenstraat 37 te Amsterdam

Meer meldingen in deze omgeving

Nieuw bedrijf
April 2026
Peursumstraat 64, 1106BV Amsterdam

Binnenkijken bij
Maandag 13-4-2026
Polsbroekstraat 57, 1106BC Amsterdam

Binnenkijken bij
Maandag 13-4-2026
Remmerdenplein 45, 1106AG Amsterdam

112 melding
Zaterdag 4-4-2026 om 13:44
Papendrechtstraat, Amsterdam

112 melding
Zaterdag 4-4-2026 om 13:04
Papendrechtstraat, Amsterdam

112 melding
Vrijdag 3-4-2026 om 01:43
Poederooienstraat, Amsterdam

112 melding
Donderdag 2-4-2026 om 03:58
Poederooienstraat, Amsterdam

112 melding
Dinsdag 31-3-2026 om 15:50
Remmerdenplein, Amsterdam

Direct een e-mail ontvangen bij nieuwe meldingen in deze regio?

Meld je dan GRATIS aan voor de Oozo Alert service voor Gaasperdam Noord

Instellen

Meer nieuws in Gaasperdam Noord

Weten hoe eenvoudig het is om af te vallen? Zonder pillen en smeersels en zonder je in het zweet te werken!
Kijk op eenvoudig-afvallen.nl

© 2012 - 2026 OOZO.nl - info@oozo.nl - Gegevens verwijderen? | Disclaimer | Privacy statement