Woning Reigersbos 118 Amsterdam

Reigersbos 118, 1107ES Amsterdam

Ontvang updates voor Gaasperdam Zuid

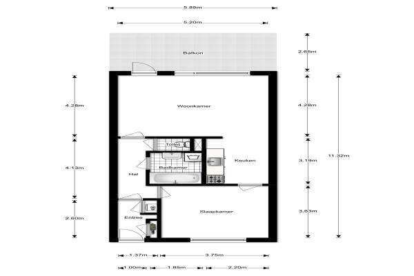
Het adres van deze woning uit 1985 is Reigersbos 118 te Amsterdam. Het pand heeft een oppervlakte van 58m² en heeft 2 kamers kamers waarvan 1 slaapkamers. De geschatte waarde van deze woning is € 129.900.

Bekijk alle woningen in Gaasperdam Zuid

Gegevens van Bovenwoning (appartement)

Bouwjaar
1985
Geschatte waarde
€ 129.900
Oppervlakte
58 m2
Inhoud
146 m3
Aantal kamers
2 kamers
Slaapkamers
1
Soort bouw
Bestaande bouw

Voorzieningen in de buurt

Boodschappen0,4 km
Grote supermarkt0,6 km
Cafetaria0,5 km
Restaurant0,4 km
Huisarts0,7 km
Ziekenhuis2,6 km
Kinderdagverblijf0,3 km
BSO0,3 km
Alle voorzieningen in Gaasperdam Zuid

Binnenkijken bij Reigersbos 118 te Amsterdam

Meer meldingen in deze omgeving

Nieuw bedrijf
Januari 2026
Reigersbos 180, 1107ES Amsterdam

112 melding
Woensdag 31-12-2025 om 12:16
Soesterberghof, Amsterdam

112 melding
Woensdag 31-12-2025 om 11:54
Soesterberghof, Amsterdam

Nieuw bedrijf
December 2025
Reigersbos 100P, 1107ES Amsterdam

112 melding
Zaterdag 27-12-2025 om 01:38
Soesterberghof, Amsterdam

Nieuw bedrijf
December 2025
Soesterberghof 13, 1107GM Amsterdam

Binnenkijken bij
Zaterdag 20-12-2025
Schelluinenstraat 26, 1107JJ Amsterdam

Binnenkijken bij
Zaterdag 13-12-2025
Schelluinenstraat 2, 1107JH Amsterdam

Direct een e-mail ontvangen bij nieuwe meldingen in deze regio?

Meld je dan GRATIS aan voor de Oozo Alert service voor Gaasperdam Zuid

Instellen

Meer nieuws in Gaasperdam Zuid

Weten hoe eenvoudig het is om af te vallen? Zonder pillen en smeersels en zonder je in het zweet te werken!
Kijk op eenvoudig-afvallen.nl

© 2012 - 2026 OOZO.nl - info@oozo.nl - Gegevens verwijderen? | Disclaimer | Privacy statement