Woning Soesterberghof 60 Amsterdam

Soesterberghof 60, 1107GP Amsterdam

Ontvang updates voor Gaasperdam Zuid

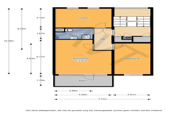
Het adres van deze woning uit 1982 is Soesterberghof 60 te Amsterdam. Het pand heeft een oppervlakte van 57m² en heeft 2 kamers kamers waarvan 1 slaapkamers. De geschatte waarde van deze woning is € 135.000.

Bekijk alle woningen in Gaasperdam Zuid

Gegevens van Bovenwoning (appartement)

Bouwjaar
1982
Geschatte waarde
€ 135.000
Oppervlakte
57 m2
Inhoud
165 m3
Aantal kamers
2 kamers
Slaapkamers
1
Badkamers
1 badkamer
Soort bouw
Bestaande bouw
Eigendomssituatie
Gemeentelijk eigendom belast met erfpacht
Ligging
Aan park, in woonwijk en vrij uitzicht

Voorzieningen in de buurt

Boodschappen0,4 km
Grote supermarkt0,6 km
Cafetaria0,5 km
Restaurant0,4 km
Huisarts0,7 km
Ziekenhuis2,6 km
Kinderdagverblijf0,3 km
BSO0,3 km
Alle voorzieningen in Gaasperdam Zuid

Binnenkijken bij Soesterberghof 60 te Amsterdam

Meer meldingen in deze omgeving

Nieuw bedrijf
December 2025
Soesterberghof 13, 1107GM Amsterdam

Nieuw bedrijf
December 2025
Soesterberghof 142, 1107GT Amsterdam

Nieuw bedrijf
December 2025
Renooiplein 16, 1107EA Amsterdam

Binnenkijken bij
Zondag 7-12-2025
Schelluinenstraat 56, 1107JJ Amsterdam

112 melding
Zondag 7-12-2025 om 01:27
Renooiplein, Amsterdam

112 melding
Vrijdag 5-12-2025 om 12:18
Schaarsbergenstraat, Amsterdam

Nieuw bedrijf
December 2025
Soesterberghof 145, 1107GV Amsterdam

112 melding
Woensdag 3-12-2025 om 07:47
Scherpenzeelstraat, Amsterdam

Direct een e-mail ontvangen bij nieuwe meldingen in deze regio?

Meld je dan GRATIS aan voor de Oozo Alert service voor Gaasperdam Zuid

Instellen

Meer nieuws in Gaasperdam Zuid

Weten hoe eenvoudig het is om af te vallen? Zonder pillen en smeersels en zonder je in het zweet te werken!
Kijk op eenvoudig-afvallen.nl

© 2012 - 2025 OOZO.nl - info@oozo.nl - Gegevens verwijderen? | Disclaimer | Privacy statement