Woning Tielstraat 106 Amsterdam

Tielstraat 106, 1107RC Amsterdam

Ontvang updates voor Reigersbos Midden

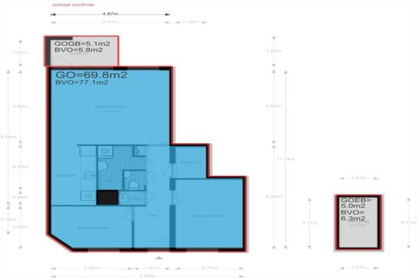
Het adres van deze woning uit 1984 is Tielstraat 106 te Amsterdam. Het pand heeft een oppervlakte van 70m² en heeft 3 kamers kamers waarvan 2 slaapkamers. De geschatte waarde van deze woning is € 175.000.

Bekijk alle woningen in Reigersbos Midden

Gegevens van Portiekflat (appartement)

Bouwjaar
1984
Geschatte waarde
€ 175.000
Oppervlakte
70 m2
Inhoud
214 m3
Aantal kamers
3 kamers
Slaapkamers
2
Soort bouw
Bestaande bouw
Eigendomssituatie
Eigendom belast met erfpacht
Ligging
Vrij uitzicht

Voorzieningen in de buurt

Boodschappen0,8 km
Grote supermarkt0,9 km
Cafetaria0,9 km
Restaurant0,8 km
Huisarts0,8 km
Ziekenhuis2,3 km
Kinderdagverblijf0,7 km
BSO0,8 km
Alle voorzieningen in Reigersbos Midden

Binnenkijken bij Tielstraat 106 te Amsterdam

Meer meldingen in deze omgeving

Binnenkijken bij
Dinsdag 25-11-2025
Tielstraat 58, 1107RA Amsterdam

112 melding
Maandag 24-11-2025 om 21:15
Toutenburgstraat, Amsterdam

112 melding
Maandag 24-11-2025 om 11:31
Ravensteinstraat, Amsterdam

112 melding
Zaterdag 22-11-2025 om 11:24
Tolkamerstraat, Amsterdam

112 melding
Zaterdag 22-11-2025 om 11:24
Tolkamerstraat, Amsterdam

112 melding
Vrijdag 21-11-2025 om 10:23
Ravensteinstraat, Amsterdam

Nieuw bedrijf
November 2025
Tolkamerstraat 7, 1107PA Amsterdam

Nieuw bedrijf
November 2025
Tielstraat 28, 1107PZ Amsterdam

Direct een e-mail ontvangen bij nieuwe meldingen in deze regio?

Meld je dan GRATIS aan voor de Oozo Alert service voor Reigersbos Midden

Instellen

Meer nieuws in Reigersbos Midden

Weten hoe eenvoudig het is om af te vallen? Zonder pillen en smeersels en zonder je in het zweet te werken!
Kijk op eenvoudig-afvallen.nl

© 2012 - 2025 OOZO.nl - info@oozo.nl - Gegevens verwijderen? | Disclaimer | Privacy statement