Woning Rhenenhof 62 Amsterdam

Rhenenhof 62, 1106JG Amsterdam

Ontvang updates voor Reigersbos Noord

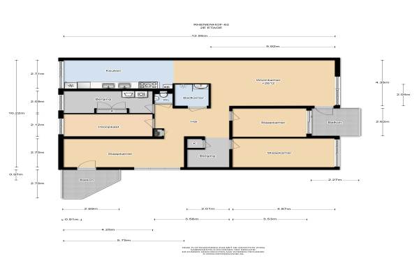
Het adres van deze woning uit 1976 is Rhenenhof 62 te Amsterdam. Het pand heeft een oppervlakte van 128m² en heeft 5 kamers kamers waarvan 4 slaapkamers. De geschatte waarde van deze woning is € 220.000.

Bekijk alle woningen in Reigersbos Noord

Gegevens van Portiekflat (appartement)

Bouwjaar
1976
Geschatte waarde
€ 220.000
Oppervlakte
128 m2
Inhoud
381 m3
Aantal kamers
5 kamers
Slaapkamers
4
Badkamers
1 badkamer en 1 apart toilet
Soort bouw
Bestaande bouw
Eigendomssituatie
Gemeentelijk eigendom belast met erfpacht
Ligging
Aan rustige weg en in woonwijk

Voorzieningen in de buurt

Boodschappen0,9 km
Grote supermarkt1,0 km
Cafetaria0,6 km
Restaurant0,6 km
Huisarts0,8 km
Ziekenhuis1,4 km
Kinderdagverblijf0,6 km
BSO0,4 km
Alle voorzieningen in Reigersbos Noord

Binnenkijken bij Rhenenhof 62 te Amsterdam

Meer meldingen in deze omgeving

112 melding
Zondag 12-10-2025 om 16:46
Meernhof, Amsterdam

112 melding
Vrijdag 10-10-2025 om 18:03
Millingenhof, Amsterdam

112 melding
Vrijdag 10-10-2025 om 18:03
Millingenhof, Amsterdam

112 melding
Donderdag 9-10-2025 om 10:42
Ophemerthof, Amsterdam

Binnenkijken bij
Donderdag 9-10-2025
Montfoorthof 38, 1106JM Amsterdam

Binnenkijken bij
Donderdag 9-10-2025
Ophemerthof 176, 1106XE Amsterdam

Binnenkijken bij
Donderdag 9-10-2025
Rhenenhof 98, 1106JJ Amsterdam

Nieuw bedrijf
Oktober 2025
Opheusdenhof 3, 1106TN Amsterdam

Direct een e-mail ontvangen bij nieuwe meldingen in deze regio?

Meld je dan GRATIS aan voor de Oozo Alert service voor Reigersbos Noord

Instellen

Meer nieuws in Reigersbos Noord

Weten hoe eenvoudig het is om af te vallen? Zonder pillen en smeersels en zonder je in het zweet te werken!
Kijk op eenvoudig-afvallen.nl

© 2012 - 2025 OOZO.nl - info@oozo.nl - Gegevens verwijderen? | Disclaimer | Privacy statement