Woning Generaal Vetterstraat 17hs Amsterdam

Generaal Vetterstraat 17hs, 1059BS Amsterdam

Ontvang updates voor Aalsmeerwegbuurt Oost

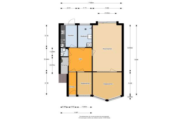
Het adres van deze woning uit 1921 is Generaal Vetterstraat 17hs te Amsterdam. Het pand heeft een oppervlakte van 74m² en heeft 3 kamers kamers waarvan 2 slaapkamers. De geschatte waarde van deze woning is € 350.000.

Bekijk alle woningen in Aalsmeerwegbuurt Oost

Gegevens van Benedenwoning (appartement)

Bouwjaar
1921
Geschatte waarde
€ 350.000
Oppervlakte
74 m2
Inhoud
220 m3
Aantal kamers
3 kamers
Slaapkamers
2
Badkamers
1 badkamer en 1 apart toilet
Soort bouw
Bestaande bouw
Eigendomssituatie
Gemeentelijk eigendom belast met erfpacht (einddatum erfpacht: 30-09-2063)
Ligging
Aan rustige weg en in woonwijk
Tuin
Achtertuin
Achtertuin
51 m² (7,85m diep en 6,54m breed)

Voorzieningen in de buurt

Boodschappen0,2 km
Grote supermarkt0,2 km
Cafetaria0,2 km
Restaurant0,2 km
Huisarts0,5 km
Ziekenhuis2,5 km
Kinderdagverblijf0,2 km
BSO0,5 km
Alle voorzieningen in Aalsmeerwegbuurt Oost

Binnenkijken bij Generaal Vetterstraat 17hs te Amsterdam

Meer meldingen in deze omgeving

Nieuw bedrijf
November 2025
Aalsmeerweg 193, 1059AA Amsterdam

112 melding
Dinsdag 18-11-2025 om 19:25
Spijtellaantje, 1059BR Amsterdam

Binnenkijken bij
Vrijdag 14-11-2025
Aalsmeerweg 291, 1059AB Amsterdam

Binnenkijken bij
Vrijdag 14-11-2025
Generaal Vetterstraat 211, 1059BS Amsterdam

Nieuw bedrijf
November 2025
Leimuidenstraat 382, 1059EK Amsterdam

Nieuw bedrijf
November 2025
Aalsmeerweg 85B, 1059AE Amsterdam

112 melding
Zaterdag 8-11-2025 om 22:36
Leimuidenstraat, Amsterdam

112 melding
Vrijdag 31-10-2025 om 18:33
Leimuidenstraat, Amsterdam

Direct een e-mail ontvangen bij nieuwe meldingen in deze regio?

Meld je dan GRATIS aan voor de Oozo Alert service voor Aalsmeerwegbuurt Oost

Instellen

Meer nieuws in Aalsmeerwegbuurt Oost

Weten hoe eenvoudig het is om af te vallen? Zonder pillen en smeersels en zonder je in het zweet te werken!
Kijk op eenvoudig-afvallen.nl

© 2012 - 2025 OOZO.nl - info@oozo.nl - Gegevens verwijderen? | Disclaimer | Privacy statement