Woning Aalsmeerweg 121 Amsterdam

Aalsmeerweg 121, 1059AH Amsterdam

Ontvang updates voor Aalsmeerwegbuurt Oost

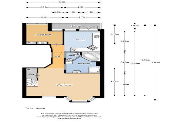
Het adres van deze woning is Aalsmeerweg 121 te Amsterdam. Het pand heeft een oppervlakte van 85m² en heeft 3 kamers kamers waarvan 2 slaapkamers. De geschatte waarde van deze woning is € 460.000.

Bekijk alle woningen in Aalsmeerwegbuurt Oost

Gegevens van Bovenwoning (appartement met open portiek)

Geschatte waarde
€ 460.000
Oppervlakte
85 m2
Inhoud
277 m3
Aantal kamers
3 kamers
Slaapkamers
2
Badkamers
1 badkamer en 1 apart toilet
Soort bouw
Bestaande bouw
Eigendomssituatie
Volle eigendom
Ligging
In woonwijk

Voorzieningen in de buurt

Boodschappen0,2 km
Grote supermarkt0,2 km
Cafetaria0,2 km
Restaurant0,2 km
Huisarts0,5 km
Ziekenhuis2,5 km
Kinderdagverblijf0,2 km
BSO0,5 km
Alle voorzieningen in Aalsmeerwegbuurt Oost

Binnenkijken bij Aalsmeerweg 121 te Amsterdam

Meer meldingen in deze omgeving

Binnenkijken bij
Zondag 25-1-2026
Rijnsburgstraat 343, 1059AW Amsterdam

Binnenkijken bij
Zondag 25-1-2026
Leimuidenstraat 15H, 1059ED Amsterdam

Nieuw bedrijf
Januari 2026
Generaal Vetterstraat 22H, 1059BV Amsterdam

Nieuw bedrijf
Januari 2026
Generaal Vetterstraat 22H, 1059BV Amsterdam

Nieuw bedrijf
Januari 2026
Leimuidenstraat 121, 1059EH Amsterdam

Nieuw bedrijf
Januari 2026
Aalsmeerweg 932, 1059AE Amsterdam

Binnenkijken bij
Woensdag 21-1-2026
Kromme Leimuidenstraat 142, 1059EN Amsterdam

Binnenkijken bij
Woensdag 21-1-2026
Rijnsburgstraat 481, 1059AX Amsterdam

Direct een e-mail ontvangen bij nieuwe meldingen in deze regio?

Meld je dan GRATIS aan voor de Oozo Alert service voor Aalsmeerwegbuurt Oost

Instellen

Meer nieuws in Aalsmeerwegbuurt Oost

Weten hoe eenvoudig het is om af te vallen? Zonder pillen en smeersels en zonder je in het zweet te werken!
Kijk op eenvoudig-afvallen.nl

© 2012 - 2026 OOZO.nl - info@oozo.nl - Gegevens verwijderen? | Disclaimer | Privacy statement