Woning Sassenheimstraat 57II Amsterdam

Sassenheimstraat 57II, 1059BD Amsterdam

Ontvang updates voor Aalsmeerwegbuurt West

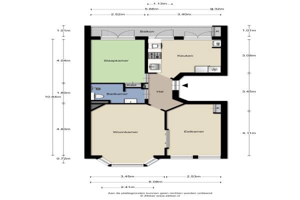
Het adres van deze woning uit 1930 is Sassenheimstraat 57II te Amsterdam. Het pand heeft een oppervlakte van 61m² en heeft 3 kamers kamers waarvan 1 slaapkamers. De geschatte waarde van deze woning is € 350.000.

Bekijk alle woningen in Aalsmeerwegbuurt West

Gegevens van Bovenwoning (appartement)

Bouwjaar
1930
Geschatte waarde
€ 350.000
Oppervlakte
61 m2
Inhoud
208 m3
Aantal kamers
3 kamers
Slaapkamers
1
Badkamers
1 badkamer
Soort bouw
Bestaande bouw
Eigendomssituatie
Volle eigendom
Ligging
Aan rustige weg

Voorzieningen in de buurt

Boodschappen0,2 km
Grote supermarkt0,3 km
Cafetaria0,2 km
Restaurant0,1 km
Huisarts0,3 km
Ziekenhuis2,4 km
Kinderdagverblijf0,2 km
BSO0,6 km
Alle voorzieningen in Aalsmeerwegbuurt West

Binnenkijken bij Sassenheimstraat 57II te Amsterdam

Meer meldingen in deze omgeving

Binnenkijken bij
Vrijdag 14-11-2025
Woestduinstraat 1171, 1059SR Amsterdam

Binnenkijken bij
Vrijdag 14-11-2025
Aalsmeerweg 902, 1059AN Amsterdam

Nieuw bedrijf
November 2025
Sassenheimstraat 722, 1059BL Amsterdam

Nieuw bedrijf
November 2025
Sassenheimstraat 703, 1059BL Amsterdam

Nieuw bedrijf
November 2025
Katwijkstraat 211, 1059XM Amsterdam

Nieuw bedrijf
November 2025
Katwijkstraat 211, 1059XM Amsterdam

112 melding
Woensdag 12-11-2025 om 14:57
Aalsmeerplein, 1059AS Amsterdam

112 melding
Woensdag 12-11-2025 om 14:56
Aalsmeerplein, 1059AS Amsterdam

Direct een e-mail ontvangen bij nieuwe meldingen in deze regio?

Meld je dan GRATIS aan voor de Oozo Alert service voor Aalsmeerwegbuurt West

Instellen

Meer nieuws in Aalsmeerwegbuurt West

Weten hoe eenvoudig het is om af te vallen? Zonder pillen en smeersels en zonder je in het zweet te werken!
Kijk op eenvoudig-afvallen.nl

© 2012 - 2025 OOZO.nl - info@oozo.nl - Gegevens verwijderen? | Disclaimer | Privacy statement