Woning Piet Gijzenbrugstraat 14 Amsterdam

Piet Gijzenbrugstraat 14, 1059XH Amsterdam

Ontvang updates voor Aalsmeerwegbuurt West

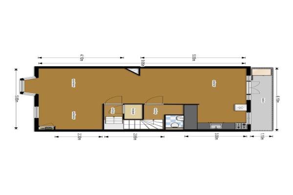
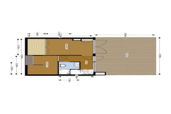
Het adres van deze woning uit 1933 is Piet Gijzenbrugstraat 14 te Amsterdam. Het pand heeft een oppervlakte van 95m² en heeft 3 kamers kamers waarvan 2 slaapkamers. De geschatte waarde van deze woning is € 565.000.

Bekijk alle woningen in Aalsmeerwegbuurt West

Gegevens van Bovenwoning (appartement)

Bouwjaar
1933
Geschatte waarde
€ 565.000
Oppervlakte
95 m2
Inhoud
265 m3
Aantal kamers
3 kamers
Slaapkamers
2
Badkamers
1 badkamer en 1 apart toilet
Soort bouw
Bestaande bouw
Eigendomssituatie
Volle eigendom
Ligging
Aan rustige weg en in woonwijk

Voorzieningen in de buurt

Boodschappen0,2 km
Grote supermarkt0,3 km
Cafetaria0,2 km
Restaurant0,1 km
Huisarts0,3 km
Ziekenhuis2,4 km
Kinderdagverblijf0,2 km
BSO0,6 km
Alle voorzieningen in Aalsmeerwegbuurt West

Binnenkijken bij Piet Gijzenbrugstraat 14 te Amsterdam

Meer meldingen in deze omgeving

Binnenkijken bij
Dinsdag 27-1-2026
Heemstedestraat 151, 1059CX Amsterdam

Binnenkijken bij
Zondag 25-1-2026
Stolwijkstraat 3, 1059XR Amsterdam

Binnenkijken bij
Zondag 25-1-2026
Stolwijkstraat 512, 1059XV Amsterdam

Binnenkijken bij
Donderdag 22-1-2026
Westlandgracht 165H, 1059TH Amsterdam

Nieuw bedrijf
Januari 2026
Sassenheimstraat 732, 1059BE Amsterdam

Nieuw bedrijf
Januari 2026
Rietwijkerstraat 66H, 1059XC Amsterdam

Binnenkijken bij
Zaterdag 17-1-2026
Woestduinstraat 1422, 1059SZ Amsterdam

112 melding
Vrijdag 16-1-2026 om 09:14
Stolwijkstraat, Amsterdam

Direct een e-mail ontvangen bij nieuwe meldingen in deze regio?

Meld je dan GRATIS aan voor de Oozo Alert service voor Aalsmeerwegbuurt West

Instellen

Meer nieuws in Aalsmeerwegbuurt West

Weten hoe eenvoudig het is om af te vallen? Zonder pillen en smeersels en zonder je in het zweet te werken!
Kijk op eenvoudig-afvallen.nl

© 2012 - 2026 OOZO.nl - info@oozo.nl - Gegevens verwijderen? | Disclaimer | Privacy statement