Woning Hoofdweg 146 Amsterdam

Hoofdweg 146, 1057DB Amsterdam

Ontvang updates voor Columbusplein e.o.

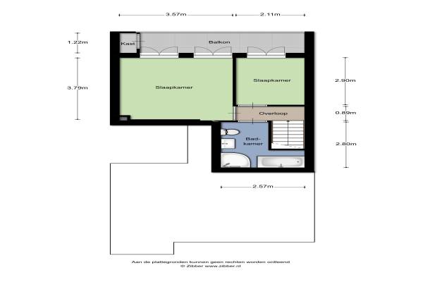
Het adres van deze woning uit 1920 is Hoofdweg 146 te Amsterdam. Het pand heeft een oppervlakte van 87m² en heeft 3 kamers kamers waarvan 2 slaapkamers. De geschatte waarde van deze woning is € 450.000.

Bekijk alle woningen in Columbusplein e.o.

Gegevens van Bovenwoning (appartement)

Bouwjaar
1920
Geschatte waarde
€ 450.000
Oppervlakte
87 m2
Inhoud
302 m3
Aantal kamers
3 kamers
Slaapkamers
2
Badkamers
1 badkamer en 1 apart toilet
Soort bouw
Bestaande bouw
Eigendomssituatie
Volle eigendom
Ligging
Aan drukke weg en in woonwijk

Voorzieningen in de buurt

Boodschappen0,2 km
Grote supermarkt0,3 km
Cafetaria0,1 km
Restaurant0,2 km
Huisarts0,2 km
Ziekenhuis1,9 km
Kinderdagverblijf0,1 km
BSO0,2 km
Alle voorzieningen in Columbusplein e.o.

Binnenkijken bij Hoofdweg 146 te Amsterdam

Meer meldingen in deze omgeving

112 melding
Zondag 12-4-2026 om 18:23
Davisstraat, Amsterdam

Binnenkijken bij
Vrijdag 10-4-2026
Columbusplein 422, 1057VB Amsterdam

Binnenkijken bij
Vrijdag 10-4-2026
Cabotstraat 132, 1057VP Amsterdam

Binnenkijken bij
Vrijdag 10-4-2026
Hoofdweg 1321, 1057DA Amsterdam

Nieuw bedrijf
April 2026
Hoofdweg 1962, 1057DD Amsterdam

Nieuw bedrijf
April 2026
Vasco da Gamastraat 26H, 1057VL Amsterdam

Nieuw bedrijf
April 2026
Vasco da Gamastraat 26H, 1057VL Amsterdam

Nieuw bedrijf
April 2026
Marco Polostraat 15H, 1057WB Amsterdam

Direct een e-mail ontvangen bij nieuwe meldingen in deze regio?

Meld je dan GRATIS aan voor de Oozo Alert service voor Columbusplein e.o.

Instellen

Meer nieuws in Columbusplein e.o.

Weten hoe eenvoudig het is om af te vallen? Zonder pillen en smeersels en zonder je in het zweet te werken!
Kijk op eenvoudig-afvallen.nl

© 2012 - 2026 OOZO.nl - info@oozo.nl - Gegevens verwijderen? | Disclaimer | Privacy statement