Woning Hoofdweg 168 Amsterdam

Hoofdweg 168, 1057DC Amsterdam

Ontvang updates voor Columbusplein e.o.

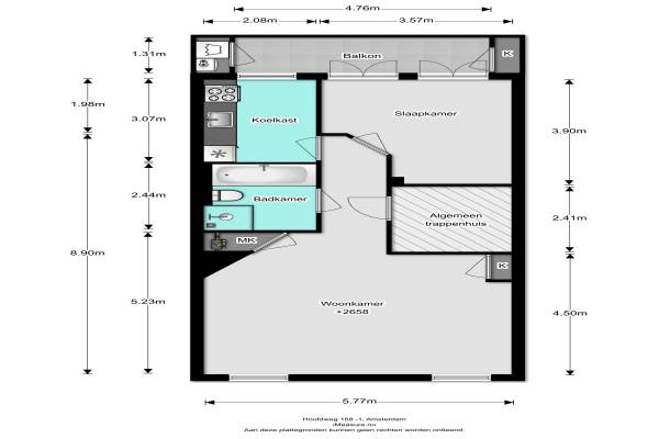
Het adres van deze woning uit 1924 is Hoofdweg 168 te Amsterdam. Het pand heeft een oppervlakte van 58m² en heeft 2 kamers kamers waarvan 1 slaapkamers. De geschatte waarde van deze woning is € 360.000.

Bekijk alle woningen in Columbusplein e.o.

Gegevens van Bovenwoning (appartement)

Bouwjaar
1924
Geschatte waarde
€ 360.000
Oppervlakte
58 m2
Inhoud
211 m3
Aantal kamers
2 kamers
Slaapkamers
1
Soort bouw
Bestaande bouw
Eigendomssituatie
Volle eigendom

Voorzieningen in de buurt

Boodschappen0,2 km
Grote supermarkt0,3 km
Cafetaria0,1 km
Restaurant0,2 km
Huisarts0,2 km
Ziekenhuis1,9 km
Kinderdagverblijf0,1 km
BSO0,2 km
Alle voorzieningen in Columbusplein e.o.

Binnenkijken bij Hoofdweg 168 te Amsterdam

Meer meldingen in deze omgeving

Binnenkijken bij
Maandag 9-3-2026
Vasco da Gamastraat 262, 1057VL Amsterdam

Nieuw bedrijf
Maart 2026
Marco Polostraat 252, 1057WC Amsterdam

112 melding
Woensdag 4-3-2026 om 09:38
Magalhaensstraat, Amsterdam

112 melding
Woensdag 4-3-2026 om 09:26
Magalhaensstraat, Amsterdam

Binnenkijken bij
Woensdag 4-3-2026
Hudsonstraat 55H, 1057RX Amsterdam

Binnenkijken bij
Woensdag 4-3-2026
Cabotstraat 132, 1057VP Amsterdam

112 melding
Zondag 1-3-2026 om 15:40
Columbusstraat, Amsterdam

Binnenkijken bij
Zaterdag 28-2-2026
Marco Polostraat 471, 1057WD Amsterdam

Direct een e-mail ontvangen bij nieuwe meldingen in deze regio?

Meld je dan GRATIS aan voor de Oozo Alert service voor Columbusplein e.o.

Instellen

Meer nieuws in Columbusplein e.o.

Weten hoe eenvoudig het is om af te vallen? Zonder pillen en smeersels en zonder je in het zweet te werken!
Kijk op eenvoudig-afvallen.nl

© 2012 - 2026 OOZO.nl - info@oozo.nl - Gegevens verwijderen? | Disclaimer | Privacy statement