Woning Hoofdweg 1912 Amsterdam

Hoofdweg 191-2, 1057CS Amsterdam

Ontvang updates voor Orteliusbuurt Zuid

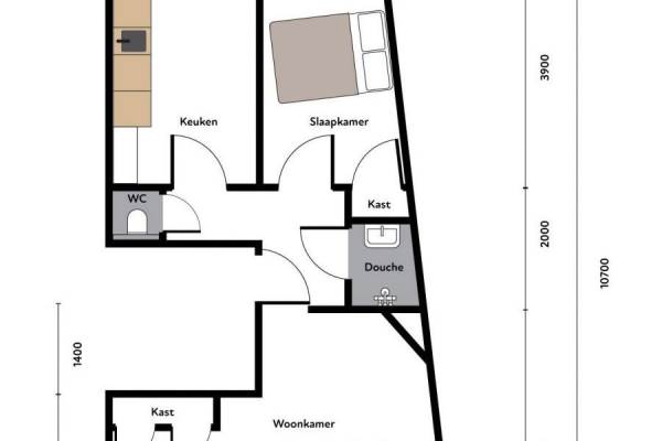
Het adres van deze woning uit 1924 is Hoofdweg 1912 te Amsterdam. Het pand heeft een oppervlakte van 47m² en heeft 2 kamers kamers waarvan 1 slaapkamers. De geschatte waarde van deze woning is € 360.000.

Bekijk alle woningen in Orteliusbuurt Zuid

Gegevens van Galerijflat (appartement)

Bouwjaar
1924
Geschatte waarde
€ 360.000
Oppervlakte
47 m2
Inhoud
126 m3
Aantal kamers
2 kamers
Slaapkamers
1
Badkamers
1 badkamer en 1 apart toilet
Soort bouw
Bestaande bouw
Eigendomssituatie
Erfpacht
Ligging
Aan drukke weg, in woonwijk en vrij uitzicht

Voorzieningen in de buurt

Boodschappen0,2 km
Grote supermarkt0,4 km
Cafetaria0,1 km
Restaurant0,2 km
Huisarts0,3 km
Ziekenhuis1,6 km
Kinderdagverblijf0,2 km
BSO0,2 km
Alle voorzieningen in Orteliusbuurt Zuid

Binnenkijken bij Hoofdweg 1912 te Amsterdam

Meer meldingen in deze omgeving

Binnenkijken bij
Zondag 19-10-2025
Orteliusstraat 382, 1057BB Amsterdam

Binnenkijken bij
Zondag 19-10-2025
Orteliusstraat 651, 1057AS Amsterdam

Binnenkijken bij
Vrijdag 17-10-2025
Orteliuskade 261, 1057AD Amsterdam

Binnenkijken bij
Zondag 12-10-2025
Van Spilbergenstraat 832, 1057RA Amsterdam

Binnenkijken bij
Zondag 12-10-2025
Van Spilbergenstraat 703, 1057RK Amsterdam

Binnenkijken bij
Donderdag 9-10-2025
Van Spilbergenstraat 473, 1057PX Amsterdam

Nieuw bedrijf
Oktober 2025
Hoofdweg 229H, 1057CV Amsterdam

Binnenkijken bij
Vrijdag 26-9-2025
Van Spilbergenstraat 503, 1057RJ Amsterdam

Direct een e-mail ontvangen bij nieuwe meldingen in deze regio?

Meld je dan GRATIS aan voor de Oozo Alert service voor Orteliusbuurt Zuid

Instellen

Meer nieuws in Orteliusbuurt Zuid

Weten hoe eenvoudig het is om af te vallen? Zonder pillen en smeersels en zonder je in het zweet te werken!
Kijk op eenvoudig-afvallen.nl

© 2012 - 2025 OOZO.nl - info@oozo.nl - Gegevens verwijderen? | Disclaimer | Privacy statement