Woning Silodam 198+PP Amsterdam

Silodam 198+PP, 1013AS Amsterdam

Ontvang updates voor Houthavens Oost

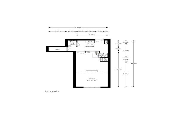
Het adres van deze woning is Silodam 198+PP te Amsterdam. Het pand heeft een oppervlakte van 126m² en heeft 3 kamers kamers waarvan 2 slaapkamers. De geschatte waarde van deze woning is € 850.000.

Bekijk alle woningen in Houthavens Oost

Gegevens van Bovenwoning (appartement)

Bouwjaar
Voor 1906
Geschatte waarde
€ 850.000
Oppervlakte
126 m2
Inhoud
420 m3
Aantal kamers
3 kamers
Slaapkamers
2
Badkamers
1 badkamer en 2 aparte toiletten
Soort bouw
Bestaande bouw
Eigendomssituatie
Gemeentelijke erfpacht
Ligging
Aan water, in woonwijk, vrij uitzicht en aan vaarwater

Voorzieningen in de buurt

Boodschappen0,3 km
Grote supermarkt1,1 km
Cafetaria0,4 km
Restaurant0,4 km
Huisarts0,4 km
Ziekenhuis2,6 km
Kinderdagverblijf0,6 km
BSO0,3 km
Alle voorzieningen in Houthavens Oost

Binnenkijken bij Silodam 198+PP te Amsterdam

Meer meldingen in deze omgeving

Binnenkijken bij
Vrijdag 14-11-2025
Silodam 218, 1013AS Amsterdam

112 melding
Vrijdag 31-10-2025 om 10:35
Silodam, Amsterdam

Binnenkijken bij
Donderdag 30-10-2025
Silodam 129B, 1013AS Amsterdam

112 melding
Zondag 26-10-2025 om 13:42
Silodam, Amsterdam

Nieuw bedrijf
Oktober 2025
Silodam 231, 1013AS Amsterdam

112 melding
Zondag 12-10-2025 om 10:07
Silodam, Amsterdam

Nieuw bedrijf
Oktober 2025
Silodam 231, 1013AS Amsterdam

Nieuw bedrijf
Oktober 2025
Silodam 323, 1013AW Amsterdam

Direct een e-mail ontvangen bij nieuwe meldingen in deze regio?

Meld je dan GRATIS aan voor de Oozo Alert service voor Houthavens Oost

Instellen

Meer nieuws in Houthavens Oost

Weten hoe eenvoudig het is om af te vallen? Zonder pillen en smeersels en zonder je in het zweet te werken!
Kijk op eenvoudig-afvallen.nl

© 2012 - 2025 OOZO.nl - info@oozo.nl - Gegevens verwijderen? | Disclaimer | Privacy statement