Woning William Barlowlaan 8 Amsterdam

William Barlowlaan 8, 1086ZR Amsterdam

Ontvang updates voor Steigereiland Zuid

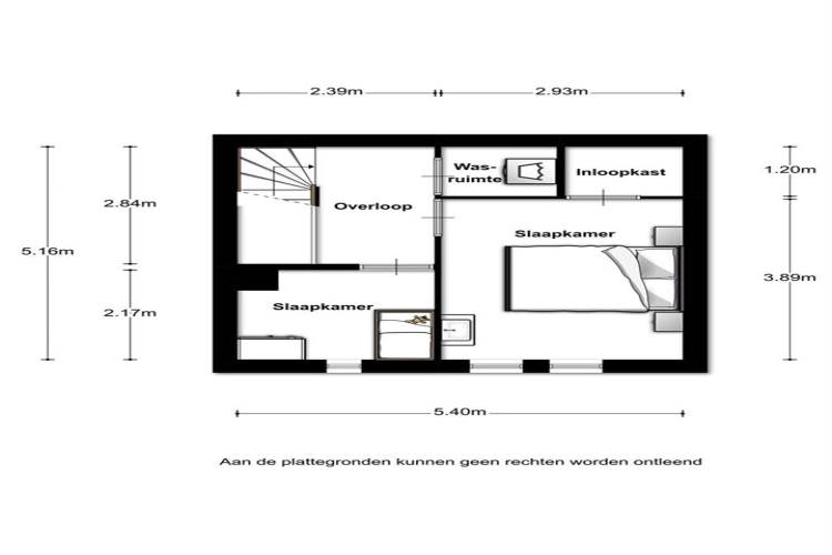
Het adres van deze woning uit 2006 is William Barlowlaan 8 te Amsterdam. Het pand heeft een oppervlakte van 83m² en een perceeloppervlakte van 34m² en heeft 4 kamers kamers waarvan 3 slaapkamers. De geschatte waarde van deze woning is € 375.000.

Bekijk alle woningen in Steigereiland Zuid

Gegevens van Eengezinswoning, tussenwoning

Bouwjaar
2006
Geschatte waarde
€ 375.000
Oppervlakte
83 m2
Inhoud
302 m3
Aantal kamers
4 kamers
Slaapkamers
3
Badkamers
1 badkamer en 1 apart toilet
Soort bouw
Bestaande bouw
Eigendomssituatie
Gemeentelijke erfpacht (einddatum erfpacht: 15-01-2055)
Ligging
Aan rustige weg en in woonwijk

Voorzieningen in de buurt

Boodschappen0,3 km
Grote supermarkt0,9 km
Cafetaria0,4 km
Restaurant0,4 km
Huisarts0,3 km
Ziekenhuis1,1 km
Kinderdagverblijf0,2 km
BSO0,2 km
Alle voorzieningen in Steigereiland Zuid

Binnenkijken bij William Barlowlaan 8 te Amsterdam

Meer meldingen in deze omgeving

112 melding
Donderdag 6-11-2025 om 02:28
Francisco Faleirostraat, 1086XV Amsterdam

112 melding
Woensdag 5-11-2025 om 03:53
Edward Wrightstraat, 1086WC Amsterdam

Binnenkijken bij
Donderdag 30-10-2025
Pedro de Medinalaan 192, 1086XR Amsterdam

Onroerend goed
Woensdag 29-10-2025
IJburglaan 354, 1086XT Amsterdam

Onroerend goed
Woensdag 29-10-2025
Pedro de Medinalaan 27, 1086XP Amsterdam

Binnenkijken bij
Woensdag 29-10-2025
IJburglaan 364, 1086XT Amsterdam

Nieuw bedrijf
Oktober 2025
Pedro de Medinalaan 7A, 1086XK Amsterdam

Nieuw bedrijf
Oktober 2025
Pedro de Medinalaan 7A, 1086XK Amsterdam

Direct een e-mail ontvangen bij nieuwe meldingen in deze regio?

Meld je dan GRATIS aan voor de Oozo Alert service voor Steigereiland Zuid

Instellen

Meer nieuws in Steigereiland Zuid

Weten hoe eenvoudig het is om af te vallen? Zonder pillen en smeersels en zonder je in het zweet te werken!
Kijk op eenvoudig-afvallen.nl

© 2012 - 2025 OOZO.nl - info@oozo.nl - Gegevens verwijderen? | Disclaimer | Privacy statement