Woning Thomas Hoodstraat 4 Amsterdam

Thomas Hoodstraat 4, 1086WE Amsterdam

Ontvang updates voor Steigereiland Zuid

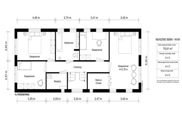
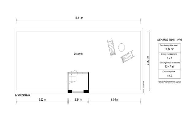
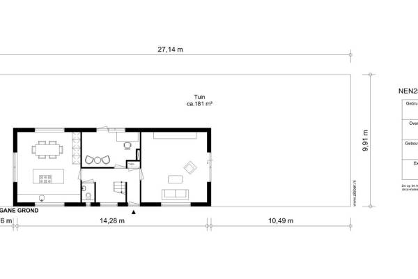
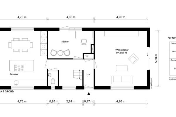
Het adres van deze woning uit 2010 is Thomas Hoodstraat 4 te Amsterdam. Het pand heeft een oppervlakte van 155m² en een perceeloppervlakte van 273m² en heeft 6 kamers kamers waarvan 4 slaapkamers. De geschatte waarde van deze woning is € 795.000.

Bekijk alle woningen in Steigereiland Zuid

Gegevens van Villa, vrijstaande woning

Bouwjaar
2010
Geschatte waarde
€ 795.000
Oppervlakte
155 m2
Inhoud
553 m3
Aantal kamers
6 kamers
Slaapkamers
4
Badkamers
1 badkamer en 1 apart toilet
Soort bouw
Bestaande bouw
Eigendomssituatie
Gemeentelijke erfpacht (einddatum erfpacht: 30-04-2057)
Ligging
Aan rustige weg, in woonwijk en vrij uitzicht
Tuin
Achtertuin en zijtuin
Achtertuin
104 m² (10,49m diep en 9,91m breed)

Voorzieningen in de buurt

Boodschappen0,3 km
Grote supermarkt0,9 km
Cafetaria0,4 km
Restaurant0,4 km
Huisarts0,3 km
Ziekenhuis1,1 km
Kinderdagverblijf0,2 km
BSO0,2 km
Alle voorzieningen in Steigereiland Zuid

Binnenkijken bij Thomas Hoodstraat 4 te Amsterdam

Meer meldingen in deze omgeving

112 melding
Donderdag 6-11-2025 om 02:28
Francisco Faleirostraat, 1086XV Amsterdam

112 melding
Woensdag 5-11-2025 om 03:53
Edward Wrightstraat, 1086WC Amsterdam

Binnenkijken bij
Donderdag 30-10-2025
Pedro de Medinalaan 192, 1086XR Amsterdam

Onroerend goed
Woensdag 29-10-2025
IJburglaan 354, 1086XT Amsterdam

Onroerend goed
Woensdag 29-10-2025
Pedro de Medinalaan 27, 1086XP Amsterdam

Binnenkijken bij
Woensdag 29-10-2025
IJburglaan 364, 1086XT Amsterdam

Nieuw bedrijf
Oktober 2025
Pedro de Medinalaan 7A, 1086XK Amsterdam

Nieuw bedrijf
Oktober 2025
Pedro de Medinalaan 7A, 1086XK Amsterdam

Direct een e-mail ontvangen bij nieuwe meldingen in deze regio?

Meld je dan GRATIS aan voor de Oozo Alert service voor Steigereiland Zuid

Instellen

Meer nieuws in Steigereiland Zuid

Weten hoe eenvoudig het is om af te vallen? Zonder pillen en smeersels en zonder je in het zweet te werken!
Kijk op eenvoudig-afvallen.nl

© 2012 - 2025 OOZO.nl - info@oozo.nl - Gegevens verwijderen? | Disclaimer | Privacy statement