Woning John Campbellstraat 10 Amsterdam

John Campbellstraat 10, 1086ZT Amsterdam

Ontvang updates voor Steigereiland Zuid

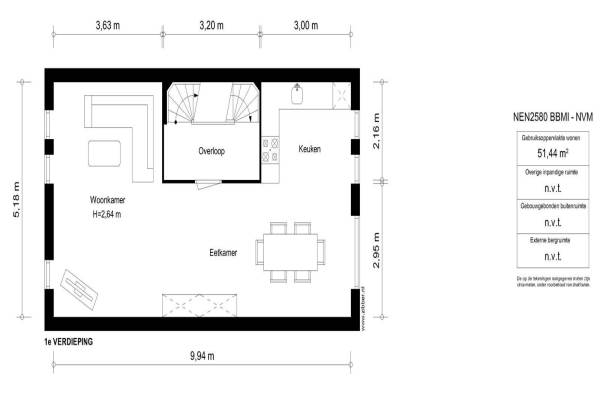
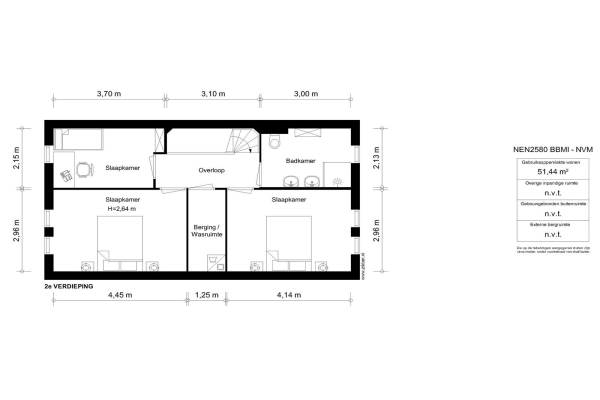
Het adres van deze woning uit 2006 is John Campbellstraat 10 te Amsterdam. Het pand heeft een oppervlakte van 133m² en een perceeloppervlakte van 111m² en heeft 5 kamers kamers waarvan 4 slaapkamers. De geschatte waarde van deze woning is € 569.000.

Bekijk alle woningen in Steigereiland Zuid

Gegevens van Herenhuis, tussenwoning

Bouwjaar
2006
Geschatte waarde
€ 569.000
Oppervlakte
133 m2
Inhoud
526 m3
Aantal kamers
5 kamers
Slaapkamers
4
Badkamers
1 badkamer en 1 apart toilet
Soort bouw
Bestaande bouw
Eigendomssituatie
Gemeentelijke erfpacht (einddatum erfpacht: 15-01-2055)
Ligging
Aan rustige weg, in woonwijk en vrij uitzicht
Tuin
Achtertuin
Achtertuin
45 m² (8,78m diep en 5,18m breed)

Voorzieningen in de buurt

Boodschappen0,3 km
Grote supermarkt0,9 km
Cafetaria0,4 km
Restaurant0,4 km
Huisarts0,3 km
Ziekenhuis1,1 km
Kinderdagverblijf0,2 km
BSO0,2 km
Alle voorzieningen in Steigereiland Zuid

Binnenkijken bij John Campbellstraat 10 te Amsterdam

Meer meldingen in deze omgeving

Nieuw bedrijf
Oktober 2025
Pedro de Medinalaan 7A, 1086XK Amsterdam

112 melding
Vrijdag 24-10-2025 om 21:48
Edmond Halleylaan, 1086ZV Amsterdam

112 melding
Woensdag 22-10-2025 om 21:31
Jan Olphert Vaillantlaan, Amsterdam

112 melding
Woensdag 22-10-2025 om 21:28
Jan Olphert Vaillantlaan, Amsterdam

112 melding
Zaterdag 18-10-2025 om 08:22
Jan Olphert Vaillantlaan, Amsterdam

Nieuw bedrijf
Oktober 2025
Pedro de Medinalaan 7A, 1086XK Amsterdam

Nieuw bedrijf
Oktober 2025
Murdoch Mackenziestraat 14, 1086WH Amsterdam

Binnenkijken bij
Zondag 12-10-2025
Jan Olphert Vaillantlaan 36, 1086ZA Amsterdam

Direct een e-mail ontvangen bij nieuwe meldingen in deze regio?

Meld je dan GRATIS aan voor de Oozo Alert service voor Steigereiland Zuid

Instellen

Meer nieuws in Steigereiland Zuid

Weten hoe eenvoudig het is om af te vallen? Zonder pillen en smeersels en zonder je in het zweet te werken!
Kijk op eenvoudig-afvallen.nl

© 2012 - 2025 OOZO.nl - info@oozo.nl - Gegevens verwijderen? | Disclaimer | Privacy statement