Woning Nieuwendammerkade 28C9 Amsterdam

Nieuwendammerkade 28C9, 1022AB Amsterdam

Ontvang updates voor Vliegenbos

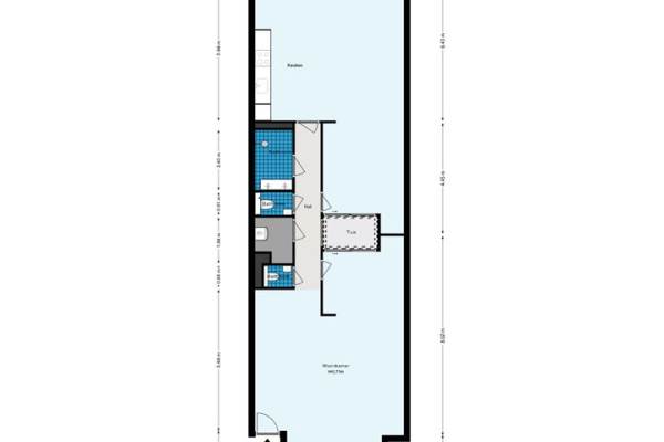
Het adres van deze woning is Nieuwendammerkade 28C9 te Amsterdam. Het pand heeft een oppervlakte van 132m² en heeft 4 kamers kamers waarvan 2 slaapkamers. De geschatte waarde van deze woning is € 895.000.

Bekijk alle woningen in Vliegenbos

Gegevens van Benedenwoning (appartement)

Geschatte waarde
€ 895.000
Oppervlakte
132 m2
Inhoud
497 m3
Aantal kamers
4 kamers
Slaapkamers
2
Badkamers
1 badkamer en 1 apart toilet
Soort bouw
Bestaande bouw
Eigendomssituatie
Volle eigendom

Voorzieningen in de buurt

Boodschappen0,9 km
Grote supermarkt1,5 km
Cafetaria0,8 km
Restaurant0,9 km
Huisarts1,4 km
Ziekenhuis3,2 km
Kinderdagverblijf0,9 km
BSO1,0 km
Alle voorzieningen in Vliegenbos

Binnenkijken bij Nieuwendammerkade 28C9 te Amsterdam

Meer meldingen in deze omgeving

Binnenkijken bij
Vrijdag 10-4-2026
Nieuwendammerkade 28C29, 1022AB Amsterdam

Nieuw bedrijf
April 2026
Nieuwendammerkade 262, 1022AB Amsterdam

Binnenkijken bij
Maandag 6-4-2026
Nieuwendammerkade 24A, 1022AB Amsterdam

Binnenkijken bij
Dinsdag 17-3-2026
Nieuwendammerkade 58, 1025LZ Amsterdam

112 melding
Zaterdag 7-3-2026 om 01:49
Nieuwendammerkade, Amsterdam

112 melding
Woensdag 11-2-2026 om 13:44
Nieuwendammerkade, Amsterdam

112 melding
Dinsdag 10-2-2026 om 16:32
Nieuwendammerkade, Amsterdam

112 melding
Dinsdag 10-2-2026 om 16:31
Nieuwendammerkade, Amsterdam

Direct een e-mail ontvangen bij nieuwe meldingen in deze regio?

Meld je dan GRATIS aan voor de Oozo Alert service voor Vliegenbos

Instellen

Meer nieuws in Vliegenbos

Weten hoe eenvoudig het is om af te vallen? Zonder pillen en smeersels en zonder je in het zweet te werken!
Kijk op eenvoudig-afvallen.nl

© 2012 - 2026 OOZO.nl - info@oozo.nl - Gegevens verwijderen? | Disclaimer | Privacy statement