Woning Javastraat 1251 Amsterdam

Javastraat 125-1, 1094HD Amsterdam

Ontvang updates voor Noordwestkwadrant Indische buurt Noord

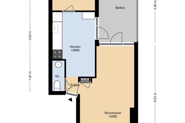
Het adres van deze woning uit 1913 is Javastraat 1251 te Amsterdam. Het pand heeft een oppervlakte van 41m² en heeft 2 kamers kamers waarvan 1 slaapkamers. De geschatte waarde van deze woning is € 335.000.

Bekijk alle woningen in Noordwestkwadrant Indische buurt Noord

Gegevens van Bovenwoning (appartement)

Bouwjaar
1913
Geschatte waarde
€ 335.000
Oppervlakte
41 m2
Inhoud
144 m3
Aantal kamers
2 kamers
Slaapkamers
1
Badkamers
1 badkamer
Soort bouw
Bestaande bouw
Eigendomssituatie
Volle eigendom
Ligging
In centrum

Voorzieningen in de buurt

Boodschappen0,2 km
Grote supermarkt0,3 km
Cafetaria0,2 km
Restaurant0,1 km
Huisarts0,4 km
Ziekenhuis1,6 km
Kinderdagverblijf0,2 km
BSO0,3 km
Alle voorzieningen in Noordwestkwadrant Indische buurt Noord

Binnenkijken bij Javastraat 1251 te Amsterdam

Meer meldingen in deze omgeving

112 melding
Woensdag 5-11-2025 om 20:09
Madurastraat, Amsterdam

Nieuw bedrijf
Oktober 2025
Borneostraat 98B, 1094CR Amsterdam

Nieuw bedrijf
Oktober 2025
Bankastraat 321, 1094EE Amsterdam

Nieuw bedrijf
Oktober 2025
Bankastraat 29C, 1094EA Amsterdam

Binnenkijken bij
Woensdag 29-10-2025
Djambistraat 52, 1094AW Amsterdam

Binnenkijken bij
Woensdag 29-10-2025
Soendastraat 20H, 1094BG Amsterdam

Binnenkijken bij
Woensdag 29-10-2025
Borneostraat 4A, 1094CJ Amsterdam

Nieuw bedrijf
Oktober 2025
Bankastraat 3N, 1094CZ Amsterdam

Direct een e-mail ontvangen bij nieuwe meldingen in deze regio?

Meld je dan GRATIS aan voor de Oozo Alert service voor Noordwestkwadrant Indische buurt Noord

Instellen

Meer nieuws in Noordwestkwadrant Indische buurt Noord

Weten hoe eenvoudig het is om af te vallen? Zonder pillen en smeersels en zonder je in het zweet te werken!
Kijk op eenvoudig-afvallen.nl

© 2012 - 2025 OOZO.nl - info@oozo.nl - Gegevens verwijderen? | Disclaimer | Privacy statement