Woning Westerstraat 246 Amsterdam

Westerstraat 246, 1015MT Amsterdam

Ontvang updates voor Anjeliersbuurt Noord

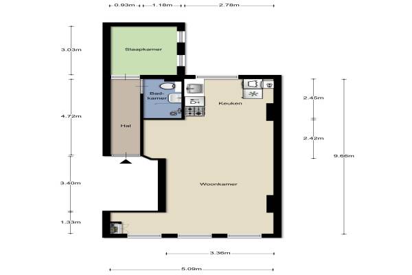
Het adres van deze woning is Westerstraat 246 te Amsterdam. Het pand heeft een oppervlakte van 50m² en heeft 2 kamers kamers waarvan 1 slaapkamers. De geschatte waarde van deze woning is € 350.000.

Bekijk alle woningen in Anjeliersbuurt Noord

Gegevens van Bovenwoning (appartement)

Geschatte waarde
€ 350.000
Oppervlakte
50 m2
Inhoud
177 m3
Aantal kamers
2 kamers
Slaapkamers
1
Badkamers
1 badkamer
Soort bouw
Bestaande bouw
Eigendomssituatie
Volle eigendom
Ligging
Aan rustige weg, in centrum en beschutte ligging

Voorzieningen in de buurt

Boodschappen0,1 km
Grote supermarkt0,2 km
Cafetaria0,1 km
Restaurant0,1 km
Huisarts0,2 km
Ziekenhuis1,4 km
Kinderdagverblijf0,2 km
BSO0,3 km
Alle voorzieningen in Anjeliersbuurt Noord

Binnenkijken bij Westerstraat 246 te Amsterdam

Meer meldingen in deze omgeving

112 melding
Zondag 15-3-2026 om 10:51
Noordermarkt, Amsterdam

112 melding
Donderdag 12-3-2026 om 13:50
Noordermarkt, Amsterdam

Binnenkijken bij
Donderdag 12-3-2026
Westerstraat 126H, 1015MP Amsterdam

Binnenkijken bij
Donderdag 12-3-2026
Boomstraat 54, 1015LD Amsterdam

Nieuw bedrijf
Maart 2026
Lindengracht 197H, 1015KG Amsterdam

Nieuw bedrijf
Maart 2026
Tweede Boomdwarsstraat 4, 1015LK Amsterdam

112 melding
Zondag 8-3-2026 om 10:40
Lindenstraat, Amsterdam

112 melding
Vrijdag 6-3-2026 om 17:14
Tweede Lindendwarsstraat, 1015LH Amsterdam

Direct een e-mail ontvangen bij nieuwe meldingen in deze regio?

Meld je dan GRATIS aan voor de Oozo Alert service voor Anjeliersbuurt Noord

Instellen

Meer nieuws in Anjeliersbuurt Noord

Weten hoe eenvoudig het is om af te vallen? Zonder pillen en smeersels en zonder je in het zweet te werken!
Kijk op eenvoudig-afvallen.nl

© 2012 - 2026 OOZO.nl - info@oozo.nl - Gegevens verwijderen? | Disclaimer | Privacy statement