Woning Lindenstraat 39 Amsterdam

Lindenstraat 39, 1015KV Amsterdam

Ontvang updates voor Anjeliersbuurt Noord

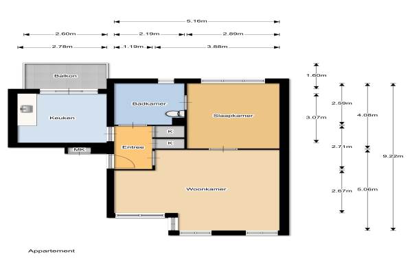
Het adres van deze woning is Lindenstraat 39 te Amsterdam. Het pand heeft een oppervlakte van 55m² en heeft 2 kamers kamers waarvan 1 slaapkamers. De geschatte waarde van deze woning is € 315.000.

Bekijk alle woningen in Anjeliersbuurt Noord

Gegevens van Bovenwoning (appartement)

Geschatte waarde
€ 315.000
Oppervlakte
55 m2
Inhoud
181 m3
Aantal kamers
2 kamers
Slaapkamers
1
Badkamers
1 badkamer
Soort bouw
Bestaande bouw
Eigendomssituatie
Gemeentelijke erfpacht (einddatum erfpacht: 15-01-2035)
Ligging
Aan rustige weg, in centrum en in woonwijk

Voorzieningen in de buurt

Boodschappen0,1 km
Grote supermarkt0,2 km
Cafetaria0,1 km
Restaurant0,1 km
Huisarts0,2 km
Ziekenhuis1,4 km
Kinderdagverblijf0,2 km
BSO0,3 km
Alle voorzieningen in Anjeliersbuurt Noord

Binnenkijken bij Lindenstraat 39 te Amsterdam

Meer meldingen in deze omgeving

112 melding
Donderdag 26-3-2026 om 20:32
Karthuizersstraat, Amsterdam

Binnenkijken bij
Donderdag 26-3-2026
Noorderkerkstraat 7H, 1015NB Amsterdam

Nieuw bedrijf
Maart 2026
Noordermarkt 351, 1015NA Amsterdam

Binnenkijken bij
Maandag 23-3-2026
Karthuizersstraat 193, 1015LP Amsterdam

Binnenkijken bij
Zondag 22-3-2026
Boomstraat 53B, 1015LB Amsterdam

Binnenkijken bij
Donderdag 19-3-2026
Lindenstraat 4A, 1015KX Amsterdam

112 melding
Zondag 15-3-2026 om 10:51
Noordermarkt, Amsterdam

112 melding
Donderdag 12-3-2026 om 13:50
Noordermarkt, Amsterdam

Direct een e-mail ontvangen bij nieuwe meldingen in deze regio?

Meld je dan GRATIS aan voor de Oozo Alert service voor Anjeliersbuurt Noord

Instellen

Meer nieuws in Anjeliersbuurt Noord

Weten hoe eenvoudig het is om af te vallen? Zonder pillen en smeersels en zonder je in het zweet te werken!
Kijk op eenvoudig-afvallen.nl

© 2012 - 2026 OOZO.nl - info@oozo.nl - Gegevens verwijderen? | Disclaimer | Privacy statement