Woning Egelantiersstraat 130 Amsterdam

Egelantiersstraat 130, 1015PR Amsterdam

Ontvang updates voor Anjeliersbuurt Zuid

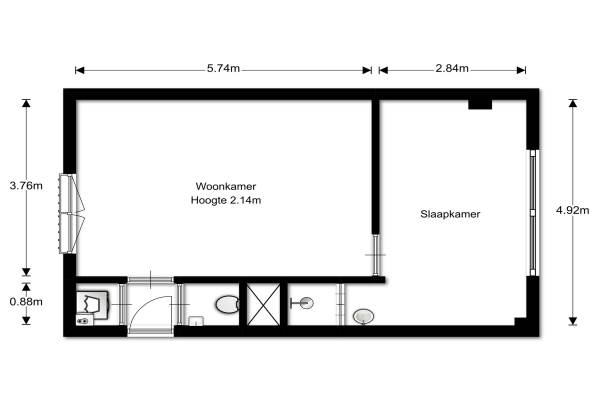
Het adres van deze woning is Egelantiersstraat 130 te Amsterdam. Het pand heeft een oppervlakte van 41m² en heeft 2 kamers kamers waarvan 1 slaapkamers. De geschatte waarde van deze woning is € 339.000.

Bekijk alle woningen in Anjeliersbuurt Zuid

Gegevens van Bovenwoning (appartement)

Bouwjaar
Voor 1906
Geschatte waarde
€ 339.000
Oppervlakte
41 m2
Inhoud
112 m3
Aantal kamers
2 kamers
Slaapkamers
1
Badkamers
1 badkamer en 1 apart toilet
Soort bouw
Bestaande bouw
Eigendomssituatie
Volle eigendom
Ligging
Aan rustige weg en in centrum

Voorzieningen in de buurt

Boodschappen0,1 km
Grote supermarkt0,3 km
Cafetaria0,1 km
Restaurant0,1 km
Huisarts0,3 km
Ziekenhuis1,2 km
Kinderdagverblijf0,2 km
BSO0,2 km
Alle voorzieningen in Anjeliersbuurt Zuid

Binnenkijken bij Egelantiersstraat 130 te Amsterdam

Meer meldingen in deze omgeving

Nieuw bedrijf
December 2025
Westerstraat 187, 1015MA Amsterdam

Nieuw bedrijf
December 2025
Westerstraat 1212, 1015LZ Amsterdam

Nieuw bedrijf
December 2025
Tweede Tuindwarsstraat 9H, 1015RX Amsterdam

Nieuw bedrijf
December 2025
Anjeliersstraat 91E, 1015NE Amsterdam

Binnenkijken bij
Zaterdag 29-11-2025
Egelantiersgracht 394, 1015RR Amsterdam

112 melding
Vrijdag 28-11-2025 om 12:51
Egelantiersstraat, Amsterdam

Nieuw bedrijf
November 2025
Egelantiersstraat 170A, 1015PS Amsterdam

Nieuw bedrijf
November 2025
Tuinstraat 100C, 1015PG Amsterdam

Direct een e-mail ontvangen bij nieuwe meldingen in deze regio?

Meld je dan GRATIS aan voor de Oozo Alert service voor Anjeliersbuurt Zuid

Instellen

Meer nieuws in Anjeliersbuurt Zuid

Weten hoe eenvoudig het is om af te vallen? Zonder pillen en smeersels en zonder je in het zweet te werken!
Kijk op eenvoudig-afvallen.nl

© 2012 - 2025 OOZO.nl - info@oozo.nl - Gegevens verwijderen? | Disclaimer | Privacy statement