Woning Schimmelstraat 41 Amsterdam

Schimmelstraat 41, 1053TC Amsterdam

Ontvang updates voor Bellamybuurt Noord

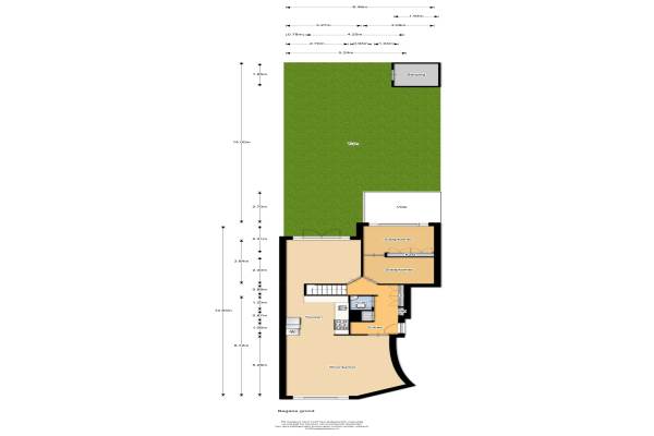
Het adres van deze woning uit 2002 is Schimmelstraat 41 te Amsterdam. Het pand heeft een oppervlakte van 105m² en heeft 5 kamers kamers waarvan 2 slaapkamers. De geschatte waarde van deze woning is € 650.000.

Bekijk alle woningen in Bellamybuurt Noord

Gegevens van Benedenwoning (appartement)

Bouwjaar
2002
Geschatte waarde
€ 650.000
Oppervlakte
105 m2
Inhoud
409 m3
Aantal kamers
5 kamers
Slaapkamers
2
Badkamers
1 badkamer
Soort bouw
Bestaande bouw
Eigendomssituatie
Volle eigendom
Ligging
Aan rustige weg en in woonwijk
Tuin
Achtertuin
Achtertuin
M² (0,15m diep en 0,07m breed)

Voorzieningen in de buurt

Boodschappen0,2 km
Grote supermarkt0,3 km
Cafetaria0,1 km
Restaurant0,1 km
Huisarts0,2 km
Ziekenhuis1,9 km
Kinderdagverblijf0,1 km
BSO0,3 km
Alle voorzieningen in Bellamybuurt Noord

Binnenkijken bij Schimmelstraat 41 te Amsterdam

Meer meldingen in deze omgeving

Binnenkijken bij
Vrijdag 28-11-2025
Schimmelstraat 32H, 1053TH Amsterdam

Nieuw bedrijf
November 2025
Tweede Kostverlorenkade 6H, 1052RJ Amsterdam

112 melding
Donderdag 27-11-2025 om 20:23
Elisabeth Wolffstraat, Amsterdam

112 melding
Dinsdag 25-11-2025 om 21:02
Elisabeth Wolffstraat, Amsterdam

112 melding
Maandag 24-11-2025 om 12:22
Elisabeth Wolffstraat, Amsterdam

Binnenkijken bij
Vrijdag 14-11-2025
Elisabeth Wolffstraat 71, 1052RN Amsterdam

Nieuw bedrijf
November 2025
Bilderdijkkade 461, 1053VG Amsterdam

Binnenkijken bij
Dinsdag 11-11-2025
De Clercqstraat 952, 1053AH Amsterdam

Direct een e-mail ontvangen bij nieuwe meldingen in deze regio?

Meld je dan GRATIS aan voor de Oozo Alert service voor Bellamybuurt Noord

Instellen

Meer nieuws in Bellamybuurt Noord

Weten hoe eenvoudig het is om af te vallen? Zonder pillen en smeersels en zonder je in het zweet te werken!
Kijk op eenvoudig-afvallen.nl

© 2012 - 2025 OOZO.nl - info@oozo.nl - Gegevens verwijderen? | Disclaimer | Privacy statement