Woning Hasebroekstraat 21 Amsterdam

Hasebroekstraat 21, 1053CL Amsterdam

Ontvang updates voor Bellamybuurt Zuid

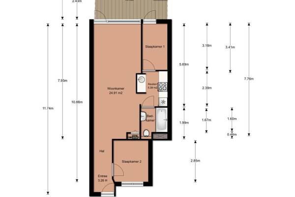
Het adres van deze woning is Hasebroekstraat 21 te Amsterdam. Het pand heeft een oppervlakte van 55m² en heeft 3 kamers kamers waarvan 2 slaapkamers. De geschatte waarde van deze woning is € 359.000.

Bekijk alle woningen in Bellamybuurt Zuid

Gegevens van Benedenwoning (appartement met open portiek)

Bouwjaar
Voor 1906
Geschatte waarde
€ 359.000
Oppervlakte
55 m2
Inhoud
171 m3
Aantal kamers
3 kamers
Slaapkamers
2
Badkamers
1 badkamer
Soort bouw
Bestaande bouw
Eigendomssituatie
Volle eigendom
Ligging
Aan rustige weg
Tuin
Achtertuin
Achtertuin
23 m² (4,75m diep en 4,88m breed)

Voorzieningen in de buurt

Boodschappen0,1 km
Grote supermarkt0,1 km
Cafetaria0,1 km
Restaurant0,1 km
Huisarts0,3 km
Ziekenhuis1,9 km
Kinderdagverblijf0,2 km
BSO0,3 km
Alle voorzieningen in Bellamybuurt Zuid

Binnenkijken bij Hasebroekstraat 21 te Amsterdam

Meer meldingen in deze omgeving

Nieuw bedrijf
December 2025
Hasebroekstraat 10H, 1053CT Amsterdam

Nieuw bedrijf
December 2025
Kinkerstraat 3624, 1053GG Amsterdam

Nieuw bedrijf
December 2025
Kinkerstraat 3283, 1053GD Amsterdam

Nieuw bedrijf
December 2025
Kinkerstraat 294H, 1053GC Amsterdam

112 melding
Maandag 8-12-2025 om 02:48
Dichtershofje, 1053RR Amsterdam

112 melding
Zondag 7-12-2025 om 13:43
Bellamystraat, Amsterdam

112 melding
Zondag 7-12-2025 om 13:14
Bellamystraat, Amsterdam

112 melding
Donderdag 4-12-2025 om 17:49
Bellamystraat, Amsterdam

Direct een e-mail ontvangen bij nieuwe meldingen in deze regio?

Meld je dan GRATIS aan voor de Oozo Alert service voor Bellamybuurt Zuid

Instellen

Meer nieuws in Bellamybuurt Zuid

Weten hoe eenvoudig het is om af te vallen? Zonder pillen en smeersels en zonder je in het zweet te werken!
Kijk op eenvoudig-afvallen.nl

© 2012 - 2025 OOZO.nl - info@oozo.nl - Gegevens verwijderen? | Disclaimer | Privacy statement