Woning Jephtastraat 53 Amsterdam

Jephtastraat 53, 1055JS Amsterdam

Ontvang updates voor Bosleeuw

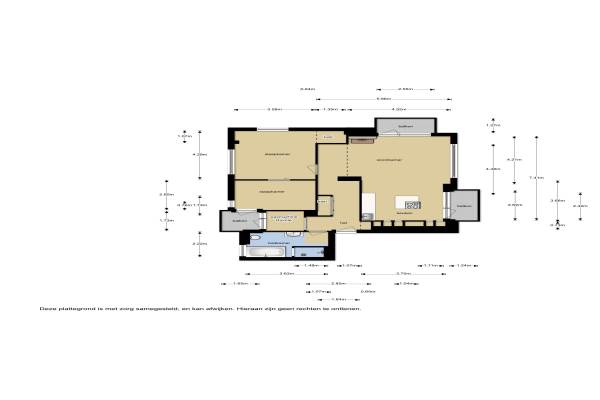
Het adres van deze woning uit 1960 is Jephtastraat 53 te Amsterdam. Het pand heeft een oppervlakte van 88m² en heeft 3 kamers kamers waarvan 2 slaapkamers. De geschatte waarde van deze woning is € 250.000.

Bekijk alle woningen in Bosleeuw

Gegevens van Portiekflat (appartement)

Bouwjaar
1960
Geschatte waarde
€ 250.000
Oppervlakte
88 m2
Inhoud
271 m3
Aantal kamers
3 kamers
Slaapkamers
2
Soort bouw
Bestaande bouw
Ligging
Aan drukke weg

Voorzieningen in de buurt

Boodschappen0,2 km
Grote supermarkt0,3 km
Cafetaria0,2 km
Restaurant0,3 km
Huisarts0,5 km
Ziekenhuis1,7 km
Kinderdagverblijf0,2 km
BSO0,3 km
Alle voorzieningen in Bosleeuw

Binnenkijken bij Jephtastraat 53 te Amsterdam

Meer meldingen in deze omgeving

112 melding
Maandag 20-4-2026 om 18:46
Lidewijdepad, 1055JR Amsterdam

Nieuw bedrijf
April 2026
Granidastraat 273, 1055HG Amsterdam

Nieuw bedrijf
April 2026
Jephtastraat 532, 1055JS Amsterdam

Binnenkijken bij
Donderdag 16-4-2026
Lucellestraat 44, 1055JA Amsterdam

Binnenkijken bij
Donderdag 16-4-2026
Admiraal De Ruijterweg 5233, 1055MK Amsterdam

112 melding
Dinsdag 14-4-2026 om 13:26
Gulden Winckelplantsoen, Amsterdam

112 melding
Maandag 13-4-2026 om 12:48
Lucellestraat, Amsterdam

112 melding
Maandag 13-4-2026 om 12:47
Lucellestraat, Amsterdam

Direct een e-mail ontvangen bij nieuwe meldingen in deze regio?

Meld je dan GRATIS aan voor de Oozo Alert service voor Bosleeuw

Instellen

Meer nieuws in Bosleeuw

Weten hoe eenvoudig het is om af te vallen? Zonder pillen en smeersels en zonder je in het zweet te werken!
Kijk op eenvoudig-afvallen.nl

© 2012 - 2026 OOZO.nl - info@oozo.nl - Gegevens verwijderen? | Disclaimer | Privacy statement