Woning Gulden Winckelplantsoen 28 Amsterdam

Gulden Winckelplantsoen 28, 1055EM Amsterdam

Ontvang updates voor Bosleeuw

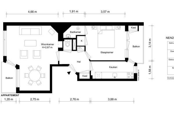
Het adres van deze woning uit 1940 is Gulden Winckelplantsoen 28 te Amsterdam. Het pand heeft een oppervlakte van 51m² en heeft 3 kamers kamers waarvan 2 slaapkamers. De geschatte waarde van deze woning is € 235.000.

Bekijk alle woningen in Bosleeuw

Gegevens van Bovenwoning

Bouwjaar
1940
Geschatte waarde
€ 235.000
Oppervlakte
51 m2
Inhoud
172 m3
Aantal kamers
3 kamers
Slaapkamers
2
Badkamers
1 badkamer en 1 apart toilet
Soort bouw
Bestaande bouw
Eigendomssituatie
Gemeentelijke erfpacht (einddatum erfpacht: 31-08-2064)
Ligging
Aan rustige weg, in woonwijk en vrij uitzicht

Voorzieningen in de buurt

Boodschappen0,2 km
Grote supermarkt0,3 km
Cafetaria0,2 km
Restaurant0,3 km
Huisarts0,5 km
Ziekenhuis1,7 km
Kinderdagverblijf0,2 km
BSO0,3 km
Alle voorzieningen in Bosleeuw

Binnenkijken bij Gulden Winckelplantsoen 28 te Amsterdam

Meer meldingen in deze omgeving

112 melding
Donderdag 8-1-2026 om 13:32
Lucellestraat, Amsterdam

112 melding
Dinsdag 6-1-2026 om 13:21
Sara Burgerhartstraat, Amsterdam

112 melding
Dinsdag 6-1-2026 om 13:16
Sara Burgerhartstraat, Amsterdam

112 melding
Dinsdag 6-1-2026 om 13:15
Sara Burgerhartstraat, Amsterdam

112 melding
Dinsdag 6-1-2026 om 13:14
Sara Burgerhartstraat, Amsterdam

Binnenkijken bij
Dinsdag 6-1-2026
Lucellestraat 332, 1055HV Amsterdam

112 melding
Maandag 5-1-2026 om 18:26
Krelis Louwenstraat, 1055KA Amsterdam

112 melding
Zondag 4-1-2026 om 22:28
Gulden Winckelplantsoen, Amsterdam

Direct een e-mail ontvangen bij nieuwe meldingen in deze regio?

Meld je dan GRATIS aan voor de Oozo Alert service voor Bosleeuw

Instellen

Meer nieuws in Bosleeuw

Weten hoe eenvoudig het is om af te vallen? Zonder pillen en smeersels en zonder je in het zweet te werken!
Kijk op eenvoudig-afvallen.nl

© 2012 - 2026 OOZO.nl - info@oozo.nl - Gegevens verwijderen? | Disclaimer | Privacy statement