Woning Bestevâerstraat 82hs Amsterdam

Bestevâerstraat 82hs, 1056HR Amsterdam

Ontvang updates voor Landlust Zuid

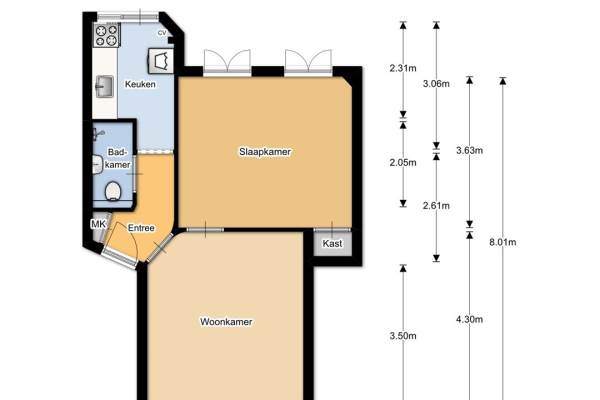
Het adres van deze woning uit 1930 is Bestevâerstraat 82hs te Amsterdam. Het pand heeft een oppervlakte van 43m² en heeft 2 kamers kamers waarvan 1 slaapkamers. De geschatte waarde van deze woning is € 250.000.

Bekijk alle woningen in Landlust Zuid

Gegevens van Benedenwoning

Bouwjaar
1930
Geschatte waarde
€ 250.000
Oppervlakte
43 m2
Inhoud
110 m3
Aantal kamers
2 kamers
Slaapkamers
1
Badkamers
1 badkamer
Soort bouw
Bestaande bouw
Eigendomssituatie
Gemeentelijk eigendom belast met erfpacht (einddatum erfpacht: 31-01-2061)
Ligging
Aan rustige weg en in woonwijk
Tuin
Achtertuin
Achtertuin
40 m² (8m diep en 5m breed)

Voorzieningen in de buurt

Boodschappen0,2 km
Grote supermarkt0,4 km
Cafetaria0,1 km
Restaurant0,2 km
Huisarts0,3 km
Ziekenhuis2,0 km
Kinderdagverblijf0,2 km
BSO0,3 km
Alle voorzieningen in Landlust Zuid

Binnenkijken bij Bestevâerstraat 82hs te Amsterdam

Meer meldingen in deze omgeving

Nieuw bedrijf
December 2025
Jasper Leijnsenstraat 191, 1056XV Amsterdam

Nieuw bedrijf
December 2025
Jasper Leijnsenstraat 191, 1056XV Amsterdam

Nieuw bedrijf
December 2025
Admiraal De Ruijterweg 164R, 1056GX Amsterdam

Binnenkijken bij
Donderdag 11-12-2025
Jasper Leijnsenstraat 13H, 1056XV Amsterdam

Nieuw bedrijf
December 2025
Jan Haringstraat 252, 1056XG Amsterdam

Nieuw bedrijf
December 2025
Admiraal De Ruijterweg 1724, 1056GX Amsterdam

Nieuw bedrijf
December 2025
Bloys van Treslongstraat 361, 1056XB Amsterdam

Binnenkijken bij
Zondag 7-12-2025
Tjerk Hiddes de Vriesstraat 53, 1055WK Amsterdam

Direct een e-mail ontvangen bij nieuwe meldingen in deze regio?

Meld je dan GRATIS aan voor de Oozo Alert service voor Landlust Zuid

Instellen

Meer nieuws in Landlust Zuid

Weten hoe eenvoudig het is om af te vallen? Zonder pillen en smeersels en zonder je in het zweet te werken!
Kijk op eenvoudig-afvallen.nl

© 2012 - 2025 OOZO.nl - info@oozo.nl - Gegevens verwijderen? | Disclaimer | Privacy statement