Woning Bestevâerstraat 112I Amsterdam

Bestevâerstraat 112I, 1056HS Amsterdam

Ontvang updates voor Landlust Zuid

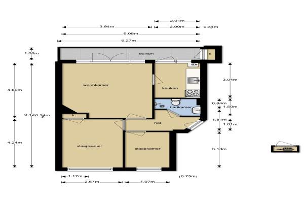
Het adres van deze woning uit 1925 is Bestevâerstraat 112I te Amsterdam. Het pand heeft een oppervlakte van 50m² en heeft 3 kamers kamers waarvan 2 slaapkamers. De geschatte waarde van deze woning is € 230.000.

Bekijk alle woningen in Landlust Zuid

Gegevens van Bovenwoning (appartement)

Bouwjaar
1925
Geschatte waarde
€ 230.000
Oppervlakte
50 m2
Inhoud
146 m3
Aantal kamers
3 kamers
Slaapkamers
2
Badkamers
1 badkamer
Soort bouw
Bestaande bouw
Eigendomssituatie
Gemeentelijk eigendom belast met erfpacht (einddatum erfpacht: 31-01-2061)
Ligging
Aan rustige weg

Voorzieningen in de buurt

Boodschappen0,2 km
Grote supermarkt0,4 km
Cafetaria0,1 km
Restaurant0,2 km
Huisarts0,3 km
Ziekenhuis2,0 km
Kinderdagverblijf0,2 km
BSO0,3 km
Alle voorzieningen in Landlust Zuid

Binnenkijken bij Bestevâerstraat 112I te Amsterdam

Meer meldingen in deze omgeving

Binnenkijken bij
Donderdag 30-10-2025
De Rijpgracht 341, 1055VT Amsterdam

Nieuw bedrijf
Oktober 2025
Willem de Zwijgerlaan 278, 1055RE Amsterdam

112 melding
Woensdag 29-10-2025 om 18:27
Jan Haringstraat, Amsterdam

112 melding
Woensdag 29-10-2025 om 18:23
Jan Haringstraat, Amsterdam

Binnenkijken bij
Woensdag 29-10-2025
Willem de Zwijgerlaan 1832, 1056JM Amsterdam

Binnenkijken bij
Woensdag 29-10-2025
Bestevâerstraat 1874, 1055TL Amsterdam

Binnenkijken bij
Woensdag 29-10-2025
Bestevâerstraat 992, 1056HK Amsterdam

Nieuw bedrijf
Oktober 2025
De Rijpstraat 1271, 1056XN Amsterdam

Direct een e-mail ontvangen bij nieuwe meldingen in deze regio?

Meld je dan GRATIS aan voor de Oozo Alert service voor Landlust Zuid

Instellen

Meer nieuws in Landlust Zuid

Weten hoe eenvoudig het is om af te vallen? Zonder pillen en smeersels en zonder je in het zweet te werken!
Kijk op eenvoudig-afvallen.nl

© 2012 - 2025 OOZO.nl - info@oozo.nl - Gegevens verwijderen? | Disclaimer | Privacy statement