Woning Bestevâerstraat 181 Amsterdam

Bestevâerstraat 181, 1055TK Amsterdam

Ontvang updates voor Landlust Zuid

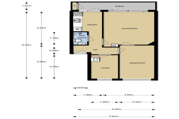
Het adres van deze woning uit 1925 is Bestevâerstraat 181 te Amsterdam. Het pand heeft een oppervlakte van 49m² en heeft 3 kamers kamers waarvan 2 slaapkamers. De geschatte waarde van deze woning is € 225.000.

Bekijk alle woningen in Landlust Zuid

Gegevens van Bovenwoning (appartement)

Bouwjaar
1925
Geschatte waarde
€ 225.000
Oppervlakte
49 m2
Inhoud
149 m3
Aantal kamers
3 kamers
Slaapkamers
2
Badkamers
1 badkamer
Soort bouw
Bestaande bouw

Voorzieningen in de buurt

Boodschappen0,2 km
Grote supermarkt0,4 km
Cafetaria0,1 km
Restaurant0,2 km
Huisarts0,3 km
Ziekenhuis2,0 km
Kinderdagverblijf0,2 km
BSO0,3 km
Alle voorzieningen in Landlust Zuid

Binnenkijken bij Bestevâerstraat 181 te Amsterdam

Meer meldingen in deze omgeving

112 melding
Donderdag 8-1-2026 om 12:51
De Rijpstraat, 1055VP Amsterdam

Binnenkijken bij
Woensdag 7-1-2026
Bestevâerstraat 1991, 1055TL Amsterdam

Binnenkijken bij
Woensdag 7-1-2026
Coppelstockstraat 4, 1056XM Amsterdam

Binnenkijken bij
Dinsdag 6-1-2026
Bestevâerstraat 1691, 1055TK Amsterdam

Binnenkijken bij
Dinsdag 6-1-2026
Jan van Galenstraat 704, 1056CC Amsterdam

112 melding
Maandag 5-1-2026 om 17:21
Bloys van Treslongstraat, Amsterdam

112 melding
Vrijdag 2-1-2026 om 21:32
Gerard Callenburgstraat, Amsterdam

112 melding
Vrijdag 2-1-2026 om 13:05
Joris van Andringastraat, Amsterdam

Direct een e-mail ontvangen bij nieuwe meldingen in deze regio?

Meld je dan GRATIS aan voor de Oozo Alert service voor Landlust Zuid

Instellen

Meer nieuws in Landlust Zuid

Weten hoe eenvoudig het is om af te vallen? Zonder pillen en smeersels en zonder je in het zweet te werken!
Kijk op eenvoudig-afvallen.nl

© 2012 - 2026 OOZO.nl - info@oozo.nl - Gegevens verwijderen? | Disclaimer | Privacy statement