Woning Bloys van Treslongstraat 62 Amsterdam

Bloys van Treslongstraat 62, 1056XD Amsterdam

Ontvang updates voor Landlust Zuid

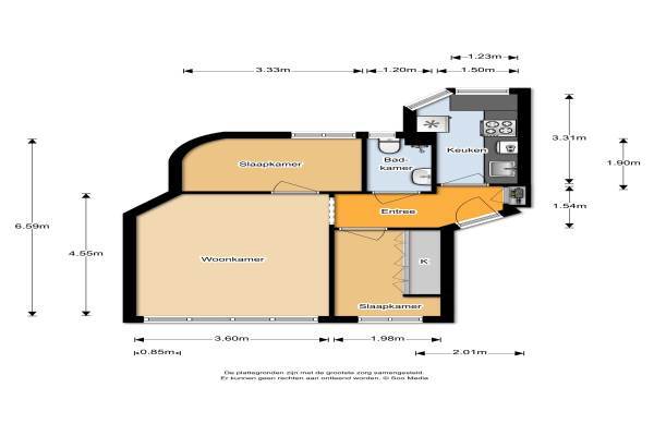
Het adres van deze woning uit 1924 is Bloys van Treslongstraat 62 te Amsterdam. Het pand heeft een oppervlakte van 43m² en heeft 3 kamers kamers waarvan 2 slaapkamers. De geschatte waarde van deze woning is € 250.000.

Bekijk alle woningen in Landlust Zuid

Gegevens van Tussenverdieping (appartement)

Bouwjaar
1924
Geschatte waarde
€ 250.000
Oppervlakte
43 m2
Inhoud
140 m3
Aantal kamers
3 kamers
Slaapkamers
2
Badkamers
1 badkamer
Soort bouw
Bestaande bouw
Eigendomssituatie
Gemeentelijk eigendom belast met erfpacht (einddatum erfpacht: 31-01-2061)
Ligging
Aan rustige weg en in woonwijk

Voorzieningen in de buurt

Boodschappen0,2 km
Grote supermarkt0,4 km
Cafetaria0,1 km
Restaurant0,2 km
Huisarts0,3 km
Ziekenhuis2,0 km
Kinderdagverblijf0,2 km
BSO0,3 km
Alle voorzieningen in Landlust Zuid

Binnenkijken bij Bloys van Treslongstraat 62 te Amsterdam

Meer meldingen in deze omgeving

112 melding
Zondag 16-11-2025 om 05:53
Bloys van Treslongstraat, Amsterdam

112 melding
Vrijdag 14-11-2025 om 08:55
Jan den Haenstraat, Amsterdam

112 melding
Vrijdag 14-11-2025 om 08:44
Jan den Haenstraat, Amsterdam

112 melding
Vrijdag 14-11-2025 om 08:43
Jan den Haenstraat, Amsterdam

Binnenkijken bij
Vrijdag 14-11-2025
Coppelstockstraat 541, 1056XM Amsterdam

Binnenkijken bij
Vrijdag 14-11-2025
Willem de Zwijgerlaan 2152, 1056JP Amsterdam

Binnenkijken bij
Vrijdag 14-11-2025
Bestevâerstraat 881, 1056HR Amsterdam

Binnenkijken bij
Vrijdag 14-11-2025
Bloys van Treslongstraat 362, 1056XB Amsterdam

Direct een e-mail ontvangen bij nieuwe meldingen in deze regio?

Meld je dan GRATIS aan voor de Oozo Alert service voor Landlust Zuid

Instellen

Meer nieuws in Landlust Zuid

Weten hoe eenvoudig het is om af te vallen? Zonder pillen en smeersels en zonder je in het zweet te werken!
Kijk op eenvoudig-afvallen.nl

© 2012 - 2025 OOZO.nl - info@oozo.nl - Gegevens verwijderen? | Disclaimer | Privacy statement