Woning Galvanistraat 2 Amsterdam

Galvanistraat 2, 1098NL Amsterdam

Ontvang updates voor Middenmeer Zuid

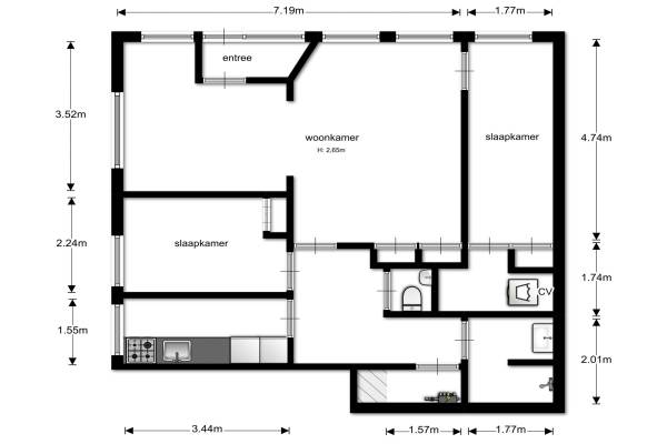
Het adres van deze woning uit 1931 is Galvanistraat 2 te Amsterdam. Het pand heeft een oppervlakte van 72m² en heeft 4 kamers kamers waarvan 2 slaapkamers. De geschatte waarde van deze woning is € 419.500.

Bekijk alle woningen in Middenmeer Zuid

Gegevens van Benedenwoning (appartement)

Bouwjaar
1931
Geschatte waarde
€ 419.500
Oppervlakte
72 m2
Inhoud
234 m3
Aantal kamers
4 kamers
Slaapkamers
2
Badkamers
1 badkamer en 1 apart toilet
Soort bouw
Bestaande bouw
Eigendomssituatie
Gemeentelijk eigendom belast met erfpacht
Ligging
Aan park, aan rustige weg, in woonwijk en vrij uitzicht

Voorzieningen in de buurt

Boodschappen0,3 km
Grote supermarkt0,3 km
Cafetaria0,2 km
Restaurant0,3 km
Huisarts0,4 km
Ziekenhuis2,3 km
Kinderdagverblijf0,3 km
BSO0,4 km
Alle voorzieningen in Middenmeer Zuid

Binnenkijken bij Galvanistraat 2 te Amsterdam

Meer meldingen in deze omgeving

112 melding
Vrijdag 14-11-2025 om 13:34
Johannes van der Waalsstraat, Amsterdam

Onroerend goed
Vrijdag 14-11-2025
Fraunhoferstraat 5- 7, 1098LN Amsterdam

Binnenkijken bij
Vrijdag 14-11-2025
Max Planckstraat 8H, 1098TV Amsterdam

Binnenkijken bij
Vrijdag 14-11-2025
Fraunhoferstraat 7H, 1098LN Amsterdam

Binnenkijken bij
Vrijdag 14-11-2025
Radioweg 271, 1098NE Amsterdam

Binnenkijken bij
Vrijdag 14-11-2025
Wethouder Frankeweg 36H, 1098LB Amsterdam

Binnenkijken bij
Vrijdag 14-11-2025
Rutherfordstraat 10H, 1098TM Amsterdam

Nieuw bedrijf
November 2025
Lamarckhof 5H, 1098TJ Amsterdam

Direct een e-mail ontvangen bij nieuwe meldingen in deze regio?

Meld je dan GRATIS aan voor de Oozo Alert service voor Middenmeer Zuid

Instellen

Meer nieuws in Middenmeer Zuid

Weten hoe eenvoudig het is om af te vallen? Zonder pillen en smeersels en zonder je in het zweet te werken!
Kijk op eenvoudig-afvallen.nl

© 2012 - 2025 OOZO.nl - info@oozo.nl - Gegevens verwijderen? | Disclaimer | Privacy statement