Woning Van Ostadestraat 882 Amsterdam

Van Ostadestraat 88-2, 1072TB Amsterdam

Ontvang updates voor Cornelis Troostbuurt

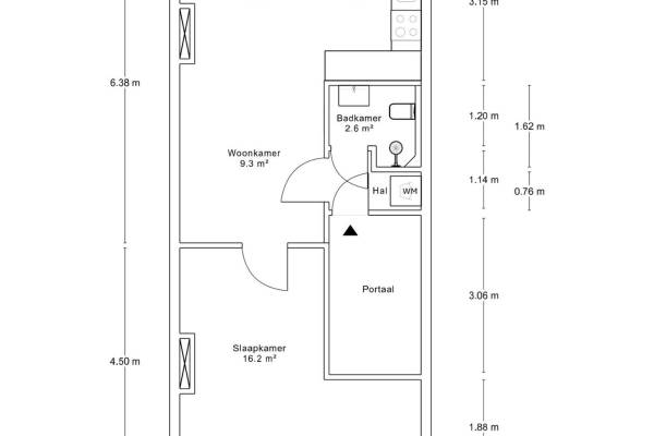
Het adres van deze woning uit 1901 is Van Ostadestraat 882 te Amsterdam. Het pand heeft een oppervlakte van 46m² en heeft 2 kamers kamers waarvan 1 slaapkamers. De geschatte waarde van deze woning is € 470.000.

Bekijk alle woningen in Cornelis Troostbuurt

Gegevens van Tussenverdieping (appartement)

Bouwjaar
1901
Geschatte waarde
€ 470.000
Oppervlakte
46 m2
Inhoud
150 m3
Aantal kamers
2 kamers
Slaapkamers
1
Badkamers
1 badkamer
Soort bouw
Bestaande bouw
Ligging
Aan rustige weg

Voorzieningen in de buurt

Boodschappen0,1 km
Grote supermarkt0,2 km
Cafetaria0,1 km
Restaurant0,1 km
Huisarts0,4 km
Ziekenhuis2,4 km
Kinderdagverblijf0,1 km
BSO0,3 km
Alle voorzieningen in Cornelis Troostbuurt

Binnenkijken bij Van Ostadestraat 882 te Amsterdam

Meer meldingen in deze omgeving

Binnenkijken bij
Vrijdag 30-1-2026
Jozef Israëlskade 40A, 1072RX Amsterdam

Onroerend goed
Woensdag 28-1-2026
Van Ostadestraat 89-A, 1072SR Amsterdam

Binnenkijken bij
Woensdag 28-1-2026
Van Ostadestraat 23, 1072SX Amsterdam

112 melding
Zondag 25-1-2026 om 11:00
Cornelis Trooststraat, Amsterdam

Binnenkijken bij
Zondag 25-1-2026
Rustenburgerstraat 4511, 1072HA Amsterdam

112 melding
Zaterdag 24-1-2026 om 23:46
Pienemanstraat, Amsterdam

112 melding
Zaterdag 24-1-2026 om 23:31
Pienemanstraat, Amsterdam

112 melding
Donderdag 22-1-2026 om 09:28
Vincent van Goghstraat, Amsterdam

Direct een e-mail ontvangen bij nieuwe meldingen in deze regio?

Meld je dan GRATIS aan voor de Oozo Alert service voor Cornelis Troostbuurt

Instellen

Meer nieuws in Cornelis Troostbuurt

Weten hoe eenvoudig het is om af te vallen? Zonder pillen en smeersels en zonder je in het zweet te werken!
Kijk op eenvoudig-afvallen.nl

© 2012 - 2026 OOZO.nl - info@oozo.nl - Gegevens verwijderen? | Disclaimer | Privacy statement