Woning Van Hilligaertstraat 4C Amsterdam

Van Hilligaertstraat 4C, 1072JZ Amsterdam

Ontvang updates voor Cornelis Troostbuurt

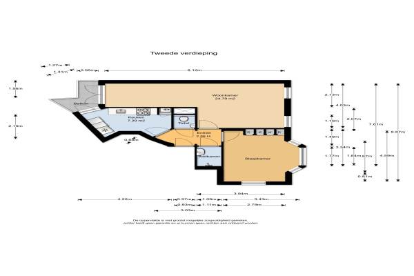
Het adres van deze woning uit 1922 is Van Hilligaertstraat 4C te Amsterdam. Het pand heeft een oppervlakte van 56m² en heeft 3 kamers kamers waarvan 1 slaapkamers. De geschatte waarde van deze woning is € 325.000.

Bekijk alle woningen in Cornelis Troostbuurt

Gegevens van Bovenwoning (appartement)

Bouwjaar
1922
Geschatte waarde
€ 325.000
Oppervlakte
56 m2
Inhoud
177 m3
Aantal kamers
3 kamers
Slaapkamers
1
Badkamers
1 apart toilet
Soort bouw
Bestaande bouw
Eigendomssituatie
Gemeentelijk eigendom belast met erfpacht (einddatum erfpacht: 01-10-2054)

Voorzieningen in de buurt

Boodschappen0,1 km
Grote supermarkt0,2 km
Cafetaria0,1 km
Restaurant0,1 km
Huisarts0,4 km
Ziekenhuis2,4 km
Kinderdagverblijf0,1 km
BSO0,3 km
Alle voorzieningen in Cornelis Troostbuurt

Binnenkijken bij Van Hilligaertstraat 4C te Amsterdam

Meer meldingen in deze omgeving

Nieuw bedrijf
December 2025
Ceintuurbaan 1882, 1072GC Amsterdam

Nieuw bedrijf
December 2025
Jozef Israëlskade 41C, 1072RX Amsterdam

112 melding
Woensdag 10-12-2025 om 13:00
Vincent van Goghstraat, Amsterdam

112 melding
Woensdag 10-12-2025 om 13:00
Vincent van Goghstraat, Amsterdam

Binnenkijken bij
Zaterdag 6-12-2025
Van Ostadestraat 31H, 1072SN Amsterdam

Nieuw bedrijf
December 2025
Jozef Israëlskade 30C, 1072RW Amsterdam

Nieuw bedrijf
December 2025
Van Ostadestraat 33, 1072SL Amsterdam

112 melding
Woensdag 3-12-2025 om 15:08
Vincent van Goghstraat, Amsterdam

Direct een e-mail ontvangen bij nieuwe meldingen in deze regio?

Meld je dan GRATIS aan voor de Oozo Alert service voor Cornelis Troostbuurt

Instellen

Meer nieuws in Cornelis Troostbuurt

Weten hoe eenvoudig het is om af te vallen? Zonder pillen en smeersels en zonder je in het zweet te werken!
Kijk op eenvoudig-afvallen.nl

© 2012 - 2025 OOZO.nl - info@oozo.nl - Gegevens verwijderen? | Disclaimer | Privacy statement