Woning Ruysdaelkade 263 Amsterdam

Ruysdaelkade 263, 1072AZ Amsterdam

Ontvang updates voor Cornelis Troostbuurt

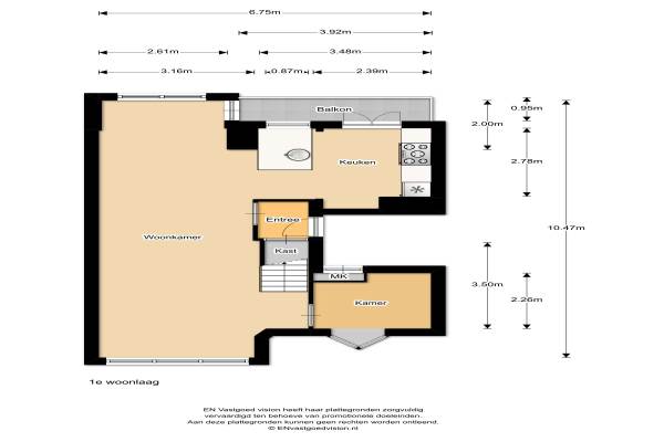
Het adres van deze woning uit 1930 is Ruysdaelkade 263 te Amsterdam. Het pand heeft een oppervlakte van 90m² en heeft 4 kamers kamers waarvan 3 slaapkamers. De geschatte waarde van deze woning is € 600.000.

Bekijk alle woningen in Cornelis Troostbuurt

Gegevens van Bovenwoning (dubbel bovenhuis)

Bouwjaar
1930
Geschatte waarde
€ 600.000
Oppervlakte
90 m2
Inhoud
315 m3
Aantal kamers
4 kamers
Slaapkamers
3
Soort bouw
Bestaande bouw
Eigendomssituatie
Gemeentelijk eigendom belast met erfpacht
Ligging
Aan water, aan rustige weg, in woonwijk, vrij uitzicht, open ligging, aan vaarwater en in bosrijke omgeving

Voorzieningen in de buurt

Boodschappen0,1 km
Grote supermarkt0,2 km
Cafetaria0,1 km
Restaurant0,1 km
Huisarts0,4 km
Ziekenhuis2,4 km
Kinderdagverblijf0,1 km
BSO0,3 km
Alle voorzieningen in Cornelis Troostbuurt

Binnenkijken bij Ruysdaelkade 263 te Amsterdam

Meer meldingen in deze omgeving

112 melding
Donderdag 5-3-2026 om 18:06
Cornelis Trooststraat, Amsterdam

Binnenkijken bij
Donderdag 5-3-2026
Van Ostadestraat 110A, 1072TC Amsterdam

Nieuw bedrijf
Maart 2026
Van Ostadestraat 983, 1072TC Amsterdam

Nieuw bedrijf
Maart 2026
Van Ostadestraat 983, 1072TC Amsterdam

Binnenkijken bij
Dinsdag 3-3-2026
Dusartstraat 333, 1072HN Amsterdam

Binnenkijken bij
Dinsdag 3-3-2026
Van Hilligaertstraat 3H, 1072JW Amsterdam

Binnenkijken bij
Dinsdag 3-3-2026
Cornelis Trooststraat 37H, 1072JB Amsterdam

Faillissement
Maandag 2-3-2026
Ferdinand Bolstraat 436, 1072MG Amsterdam

Direct een e-mail ontvangen bij nieuwe meldingen in deze regio?

Meld je dan GRATIS aan voor de Oozo Alert service voor Cornelis Troostbuurt

Instellen

Meer nieuws in Cornelis Troostbuurt

Weten hoe eenvoudig het is om af te vallen? Zonder pillen en smeersels en zonder je in het zweet te werken!
Kijk op eenvoudig-afvallen.nl

© 2012 - 2026 OOZO.nl - info@oozo.nl - Gegevens verwijderen? | Disclaimer | Privacy statement